Omschrijving
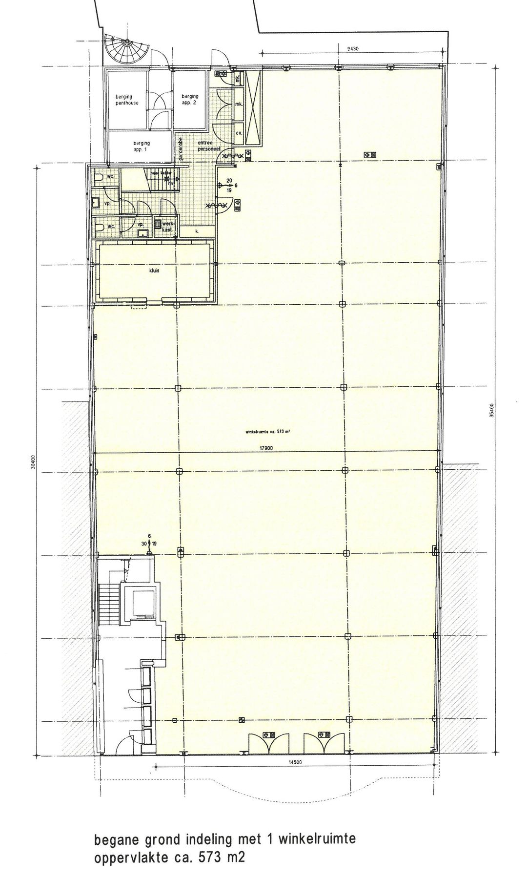
Midden in het centrum van Schagen bieden wij dit courante winkelpand van ca. 573 m² VVO en ca 80 m² kelderruimte te huur aan. De totale oppervlakte op begane grond bestaat uit een winkelruimte van ca. 535 m² VVO en een natte ruimte van ca. 38 m² VVO.
Het voormalig bankgebouw bevindt zich op de begane grond en heeft een frontbreedte van ca. 14 meter. Het object is gesitueerd in het hart van het winkelgebied, tegenover de ingang van het vernieuwde Makado Centrum. Aan de achterzijde van het pand is een nooduitgang. In overeenstemming met het geldende bestemmingsplan zijn o.a. detailhandel, dienstverlening of lichte horeca (categorie 1) toegestaan. De winkelruimte is uitgerust met ledverlichting en een systeemplafond en twee openslaande dubbele deuren. In de winkelruimte is een kluis aanwezig (afmeting ca. 6x3 meter), ideaal voor eventuele opslag van waardevolle goederen. De verwarming van de winkelruimte wordt gerealiseerd door twee luchtwarmte pompen en een op de CV aangesloten luchtwarmtegordijn. Naast de winkelruimte is er een kantine met kitchenette en een kantoorruimte aanwezig. De kantine wordt verwarmd door radiatoren via de CV.
De kelderruimte is bereikbaar middels vaste trap en faciliteert een extra bergruimte ca. van 80 m² VVO.
Oppervlakte winkelruimte, kantine, kluis en kantoor ca. 535 m² VVO.
Oppervlakte natte ruimte ca. 38 m² VVO.
Oppervlakte kelder ca. 80 m² VVO
Bouwjaar 1972 maar het pand is recentelijk gerenoveerd
Bestemming:
Conform het onherroepelijk bestemmingsplan Centrum en omgeving (vastgesteld 27 maart 2012) heeft de onroerende zaak de Enkelbestemming: Centrum - 1.
De bestemming houdt o.a. in dat het navolgende gebruik mogelijk is:
Dienstverlening / Detailhandel / Horeca, categorie 1.
Bij twijfel over het toestaan van uw bedrijfsvoering adviseren wij u zelf contact op te nemen met de Gemeente Schagen.
Servicekosten € 250,00 per maand exclusief BTW, wordt jaarlijks geïndexeerd
De servicekosten bestaan uit:
- jaarlijkse keuring/ onderhoud standaard brandblusmiddelen
- periodieke keuring elektrotechnische installaties
Voor het onderhoud van de CV ketel en warmtepomp dient huurder zelf een onderhoudscontract af te sluiten met een door de verhuurder goed te keuren bedrijf.
Bijzondere bepalingen:
- laden en lossen van goederen, dient uitsluitend aan de voorzijde (Nieuwstraat) te geschieden
- voor huurder zijn er geen parkeerplaatsen aan de achterzijde van het bedrijfspand
- huurder dient het huishoudelijke reglement van de VVE van Nieuwstraat 21 na te leven
- Vanaf 19.00 uur ’s avonds kan huurder geen gebruik meer maken van de airco-unit in verband eventuele geluidsoverlast van buren.
Kelderruimte:
De kelderruimte heeft een vochtig klimaat.
Parkeren:
Er is meer dan voldoende parkeerruimte op de openbare parkeergelegenheden aan de voorzijde of de omliggende parkeerterreinen.
Laad-losplaats voorzijde winkel:
Voor de winkelruimte heeft de gemeente Schagen een gezamenlijke parkeerplaats gerealiseerd voor het laden en lossen van een vrachtwagen ten behoeve van de bevoorrading van winkels.
Zekerheidstelling:
Een bankgarantie of waarborgsom ter grootte van drie maanden huurverplichting, te vermeerderen met BTW.
Huurtermijn:
In overleg.
Aanvaarding:
In overleg
Huurprijsbetaling:
In maandtermijnen bij vooruitbetaling te voldoen.
Indexering:
Jaarlijks op basis van het indexcijfer volgens consumentenprijsindex (CPI) reeks Alle Huishoudens (2015 = 100).
Energielabel:
Van het aangeboden object is energielabel A beschikbaar.
Voorbehoud:
Goedkeuring en gunning eigenaar.
Huurovereenkomst:
Winkelruimte artikel 7:290 BW conform model Raad voor Onroerende Zaken op 5 maart 2025
Huurprijs:
€ 11.000,- per maand exclusief BTW
Het voormalig bankgebouw bevindt zich op de begane grond en heeft een frontbreedte van ca. 14 meter. Het object is gesitueerd in het hart van het winkelgebied, tegenover de ingang van het vernieuwde Makado Centrum. Aan de achterzijde van het pand is een nooduitgang. In overeenstemming met het geldende bestemmingsplan zijn o.a. detailhandel, dienstverlening of lichte horeca (categorie 1) toegestaan. De winkelruimte is uitgerust met ledverlichting en een systeemplafond en twee openslaande dubbele deuren. In de winkelruimte is een kluis aanwezig (afmeting ca. 6x3 meter), ideaal voor eventuele opslag van waardevolle goederen. De verwarming van de winkelruimte wordt gerealiseerd door twee luchtwarmte pompen en een op de CV aangesloten luchtwarmtegordijn. Naast de winkelruimte is er een kantine met kitchenette en een kantoorruimte aanwezig. De kantine wordt verwarmd door radiatoren via de CV.
De kelderruimte is bereikbaar middels vaste trap en faciliteert een extra bergruimte ca. van 80 m² VVO.
Oppervlakte winkelruimte, kantine, kluis en kantoor ca. 535 m² VVO.
Oppervlakte natte ruimte ca. 38 m² VVO.
Oppervlakte kelder ca. 80 m² VVO
Bouwjaar 1972 maar het pand is recentelijk gerenoveerd
Bestemming:
Conform het onherroepelijk bestemmingsplan Centrum en omgeving (vastgesteld 27 maart 2012) heeft de onroerende zaak de Enkelbestemming: Centrum - 1.
De bestemming houdt o.a. in dat het navolgende gebruik mogelijk is:
Dienstverlening / Detailhandel / Horeca, categorie 1.
Bij twijfel over het toestaan van uw bedrijfsvoering adviseren wij u zelf contact op te nemen met de Gemeente Schagen.
Servicekosten € 250,00 per maand exclusief BTW, wordt jaarlijks geïndexeerd
De servicekosten bestaan uit:
- jaarlijkse keuring/ onderhoud standaard brandblusmiddelen
- periodieke keuring elektrotechnische installaties
Voor het onderhoud van de CV ketel en warmtepomp dient huurder zelf een onderhoudscontract af te sluiten met een door de verhuurder goed te keuren bedrijf.
Bijzondere bepalingen:
- laden en lossen van goederen, dient uitsluitend aan de voorzijde (Nieuwstraat) te geschieden
- voor huurder zijn er geen parkeerplaatsen aan de achterzijde van het bedrijfspand
- huurder dient het huishoudelijke reglement van de VVE van Nieuwstraat 21 na te leven
- Vanaf 19.00 uur ’s avonds kan huurder geen gebruik meer maken van de airco-unit in verband eventuele geluidsoverlast van buren.
Kelderruimte:
De kelderruimte heeft een vochtig klimaat.
Parkeren:
Er is meer dan voldoende parkeerruimte op de openbare parkeergelegenheden aan de voorzijde of de omliggende parkeerterreinen.
Laad-losplaats voorzijde winkel:
Voor de winkelruimte heeft de gemeente Schagen een gezamenlijke parkeerplaats gerealiseerd voor het laden en lossen van een vrachtwagen ten behoeve van de bevoorrading van winkels.
Zekerheidstelling:
Een bankgarantie of waarborgsom ter grootte van drie maanden huurverplichting, te vermeerderen met BTW.
Huurtermijn:
In overleg.
Aanvaarding:
In overleg
Huurprijsbetaling:
In maandtermijnen bij vooruitbetaling te voldoen.
Indexering:
Jaarlijks op basis van het indexcijfer volgens consumentenprijsindex (CPI) reeks Alle Huishoudens (2015 = 100).
Energielabel:
Van het aangeboden object is energielabel A beschikbaar.
Voorbehoud:
Goedkeuring en gunning eigenaar.
Huurovereenkomst:
Winkelruimte artikel 7:290 BW conform model Raad voor Onroerende Zaken op 5 maart 2025
Huurprijs:
€ 11.000,- per maand exclusief BTW
Kaart
Kaart laden...
Kadastrale grens
Bebouwing
Reistijd
Krijg inzicht in de bereikbaarheid van dit object vanuit bijvoorbeeld een openbaar vervoer station of vanuit een adres.