Omschrijving
Karakteristiek centrumpand met ontwikkelpotentie in het hart van Terneuzen
In het historische centrum van Terneuzen bieden wij dit karakteristieke winkelpand te koop aan. Markt 17 is een winkelpand uit circa 1890, gelegen op een kadastraal perceel van 107 m². Het pand beschikt over een verhuurbaar vloeroppervlak (VVO) van ca. 164 m², verdeeld over de begane grond en eerste verdieping.
Indeling
Indeling en oppervlakten (conform NEN 2580 meetrapport):
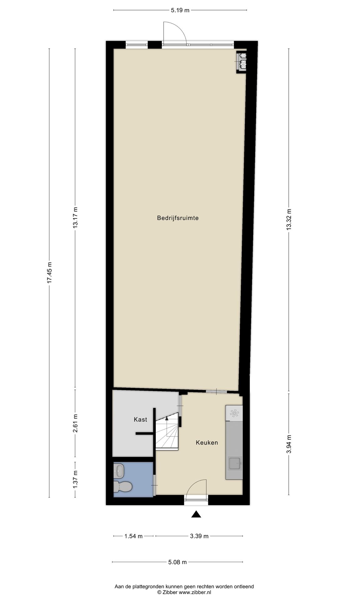
Begane grond (totaal VVO: 87,3 m²):
• Bedrijfsruimte: 67,3 m²
• Toilet-, facilitaire- en techniekruimte: 20,0 m²
Eerste verdieping
Eerste verdieping (totaal VVO: 76,3 m²):
• Momenteel ingericht als opslagruimte
Totale VVO: 163,6 m²
Bruto vloeroppervlakte (BVO): 204,9 m²
Bestemmingsinformatie – Centrum-2 (C-2):
Bijzonderheden
Op basis van het geldende bestemmingsplan zijn o.a. de volgende functies toegestaan op de begane grond:
• Detailhandel (exclusief supermarkten)
• Dienstverlening
• Kantoren
• Horeca categorie 1 en 2 (max. 400 m²)
• Maatschappelijke voorzieningen (max. 1.000 m²)
• Cultuur en ontspanning (max. 1.000 m²)
• Bedrijven in categorie 1 of 2 (niet zijnde Bevi-inrichtingen)
Op de verdieping is wonen toegestaan, evenals (onder voorwaarden) het uitoefenen van functies van de begane grond (bijv. bij horeca-activiteiten).
Met een omgevingsvergunning zijn o.a. de volgende afwijkingen mogelijk:
• Uitoefening van commerciële functies op de verdieping
• Vestiging van horeca-inrichtingen in hogere categorie
• Transformatie naar (gestapelde) woningen
Voor wie is dit interessant?
Ondernemers / winkeliers:
Zichtlocatie aan de Markt, nabij andere winkels, horeca en voorzieningen. Ideaal voor een boetiek, kantoor, speciaalzaak of salon.
Beleggers:
Centrale ligging, zelfstandige verdiepingsstructuur en uitbreidingsmogelijkheden maken dit een kansrijk object voor verhuurdoeleinden.
Herontwikkelaars:
Veel potentie tot transformatie naar wonen (volledig of deels), in overleg met de gemeente. Het bestemmingsplan biedt hiervoor volop ruimte en flexibiliteit.
Kenmerken:
• Bouwjaar: circa 1890
• VVO totaal: 163,6 m²
• BVO: 204,9 m²
• Perceel: 107 m², eigen grond (Terneuzen L 3613)
• Bestemming: Centrum-2 (C-2)
• Geen publiekrechtelijke beperkingen bekend
Dankzij de veelzijdige bestemming "Centrum-2" is het pand interessant voor diverse gebruikers: van detailhandel en dienstverlening tot horeca, kantoren en zelfs herontwikkeling naar wonen.
Meer weten of bezichtigen?
Dit pand biedt volop kansen in een levendige omgeving. Neem contact op met Harpe Makelaardij voor meer informatie, een bezichtiging of een vrijblijvend gesprek over de ontwikkelpotentie.
In het historische centrum van Terneuzen bieden wij dit karakteristieke winkelpand te koop aan. Markt 17 is een winkelpand uit circa 1890, gelegen op een kadastraal perceel van 107 m². Het pand beschikt over een verhuurbaar vloeroppervlak (VVO) van ca. 164 m², verdeeld over de begane grond en eerste verdieping.
Indeling
Indeling en oppervlakten (conform NEN 2580 meetrapport):
Begane grond (totaal VVO: 87,3 m²):
• Bedrijfsruimte: 67,3 m²
• Toilet-, facilitaire- en techniekruimte: 20,0 m²
Eerste verdieping
Eerste verdieping (totaal VVO: 76,3 m²):
• Momenteel ingericht als opslagruimte
Totale VVO: 163,6 m²
Bruto vloeroppervlakte (BVO): 204,9 m²
Bestemmingsinformatie – Centrum-2 (C-2):
Bijzonderheden
Op basis van het geldende bestemmingsplan zijn o.a. de volgende functies toegestaan op de begane grond:
• Detailhandel (exclusief supermarkten)
• Dienstverlening
• Kantoren
• Horeca categorie 1 en 2 (max. 400 m²)
• Maatschappelijke voorzieningen (max. 1.000 m²)
• Cultuur en ontspanning (max. 1.000 m²)
• Bedrijven in categorie 1 of 2 (niet zijnde Bevi-inrichtingen)
Op de verdieping is wonen toegestaan, evenals (onder voorwaarden) het uitoefenen van functies van de begane grond (bijv. bij horeca-activiteiten).
Met een omgevingsvergunning zijn o.a. de volgende afwijkingen mogelijk:
• Uitoefening van commerciële functies op de verdieping
• Vestiging van horeca-inrichtingen in hogere categorie
• Transformatie naar (gestapelde) woningen
Voor wie is dit interessant?
Ondernemers / winkeliers:
Zichtlocatie aan de Markt, nabij andere winkels, horeca en voorzieningen. Ideaal voor een boetiek, kantoor, speciaalzaak of salon.
Beleggers:
Centrale ligging, zelfstandige verdiepingsstructuur en uitbreidingsmogelijkheden maken dit een kansrijk object voor verhuurdoeleinden.
Herontwikkelaars:
Veel potentie tot transformatie naar wonen (volledig of deels), in overleg met de gemeente. Het bestemmingsplan biedt hiervoor volop ruimte en flexibiliteit.
Kenmerken:
• Bouwjaar: circa 1890
• VVO totaal: 163,6 m²
• BVO: 204,9 m²
• Perceel: 107 m², eigen grond (Terneuzen L 3613)
• Bestemming: Centrum-2 (C-2)
• Geen publiekrechtelijke beperkingen bekend
Dankzij de veelzijdige bestemming "Centrum-2" is het pand interessant voor diverse gebruikers: van detailhandel en dienstverlening tot horeca, kantoren en zelfs herontwikkeling naar wonen.
Meer weten of bezichtigen?
Dit pand biedt volop kansen in een levendige omgeving. Neem contact op met Harpe Makelaardij voor meer informatie, een bezichtiging of een vrijblijvend gesprek over de ontwikkelpotentie.
Kaart
Kaart laden...
Kadastrale grens
Bebouwing
Reistijd
Krijg inzicht in de bereikbaarheid van dit object vanuit bijvoorbeeld een openbaar vervoer station of vanuit een adres.