Burgemeester van Houtplein 41 5251 PT Vlijmen
- Verkocht
€ 349.000 k.k.
Omschrijving
Gemoderniseerde winkelruimte met prachtige bovenwoning en groot dakterras op het zuiden gelegen.
Bouwjaar: 1962
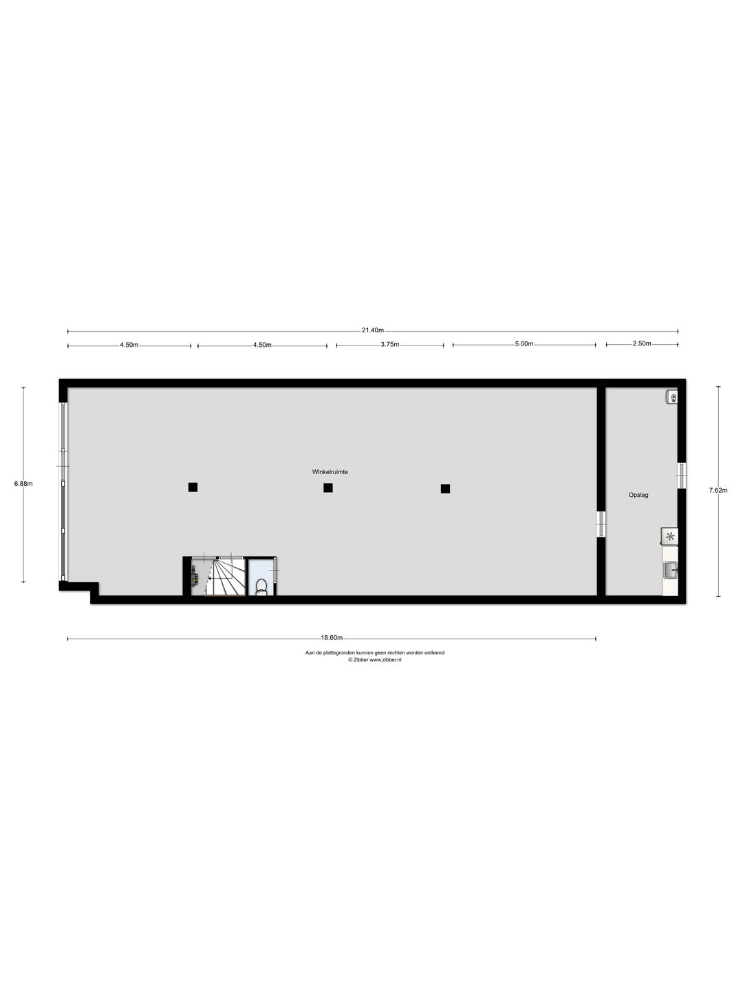
Brutovloeroppervlakte: circa 170 m² winkelruimte
Frontbreedte: circa 750 cm.
Bestemming: Winkel met bovenwoning.
INDELING:
Begane grond: circa 170 m² winkelruimte met achterin een kleine berging/magazijn.
Eerste verdieping:
Bovenhal voorzien van tegelvloer (over de gehele verdieping gedeeltelijk voorzien van vloerverwarming), toilet met wandcloset. Luxe badkamer met 2 wastafels, douche en een bubbelbad. Was-/bergruimte. Ruime woonkamer met tuindeuren naar zeer ruim dakterras op het zuiden. Keuken voorzien van combimagnetron, afzuigkap, koelkast, elektrische gaskookplaat en een deur naar het dakterras.
Tweede verdieping:
Overloop naar vier slaapkamers voorzien van dakkapellen en een c.v.-ruimte met opstelling van de combiketel (1998).
Voorzieningen:
Alarminstallatie.
Rolluiken.
Veiligheidsglas in de winkel.
Systeemplafond + verlichting.
c.v.-installatie van 1998.
Kunststof kozijnen.
Bouwjaar: 1962
Brutovloeroppervlakte: circa 170 m² winkelruimte
Frontbreedte: circa 750 cm.
Bestemming: Winkel met bovenwoning.
INDELING:
Begane grond: circa 170 m² winkelruimte met achterin een kleine berging/magazijn.
Eerste verdieping:
Bovenhal voorzien van tegelvloer (over de gehele verdieping gedeeltelijk voorzien van vloerverwarming), toilet met wandcloset. Luxe badkamer met 2 wastafels, douche en een bubbelbad. Was-/bergruimte. Ruime woonkamer met tuindeuren naar zeer ruim dakterras op het zuiden. Keuken voorzien van combimagnetron, afzuigkap, koelkast, elektrische gaskookplaat en een deur naar het dakterras.
Tweede verdieping:
Overloop naar vier slaapkamers voorzien van dakkapellen en een c.v.-ruimte met opstelling van de combiketel (1998).
Voorzieningen:
Alarminstallatie.
Rolluiken.
Veiligheidsglas in de winkel.
Systeemplafond + verlichting.
c.v.-installatie van 1998.
Kunststof kozijnen.
Kenmerken
Overdracht
- Laatste vraagprijs
- € 349.000 kosten koper
- Aangeboden sinds
-
- Status
- Verkocht
- Eigendomssituatie
- Volle eigendom
Bouw
- Hoofdfunctie
- Winkel met showroom
- Soort bouw
- Bestaande bouw
- Bouwjaar
- 1962
Oppervlakten
- Oppervlakte
- 170 m² (in units vanaf 1 m²)
- Verkoopvloeroppervlakte
- 150 m²
- Breedte gevel
- 7,5 m
- Perceel
- 192 m²
Indeling
- Aantal bouwlagen
- 2 bouwlagen
Energie
- Energielabel
- Niet beschikbaar
Omgeving
- Ligging
- Winkelcentrum en in woonwijk
- Bereikbaarheid
- Bushalte op 1000 m tot 1500 m en snelwegafrit op 1500 m tot 2000 m
- Bijdrage winkeliersvereniging
- Nee
- Welstandsklasse
- A2
NVM makelaar
Foto's