Terpstraat 39-a 1771 AC Wieringerwerf

€ 2.150 /mnd

Omschrijving

TE HUUR
Terpstraat 39 A, Wieringerwerf

ALGEMEEN
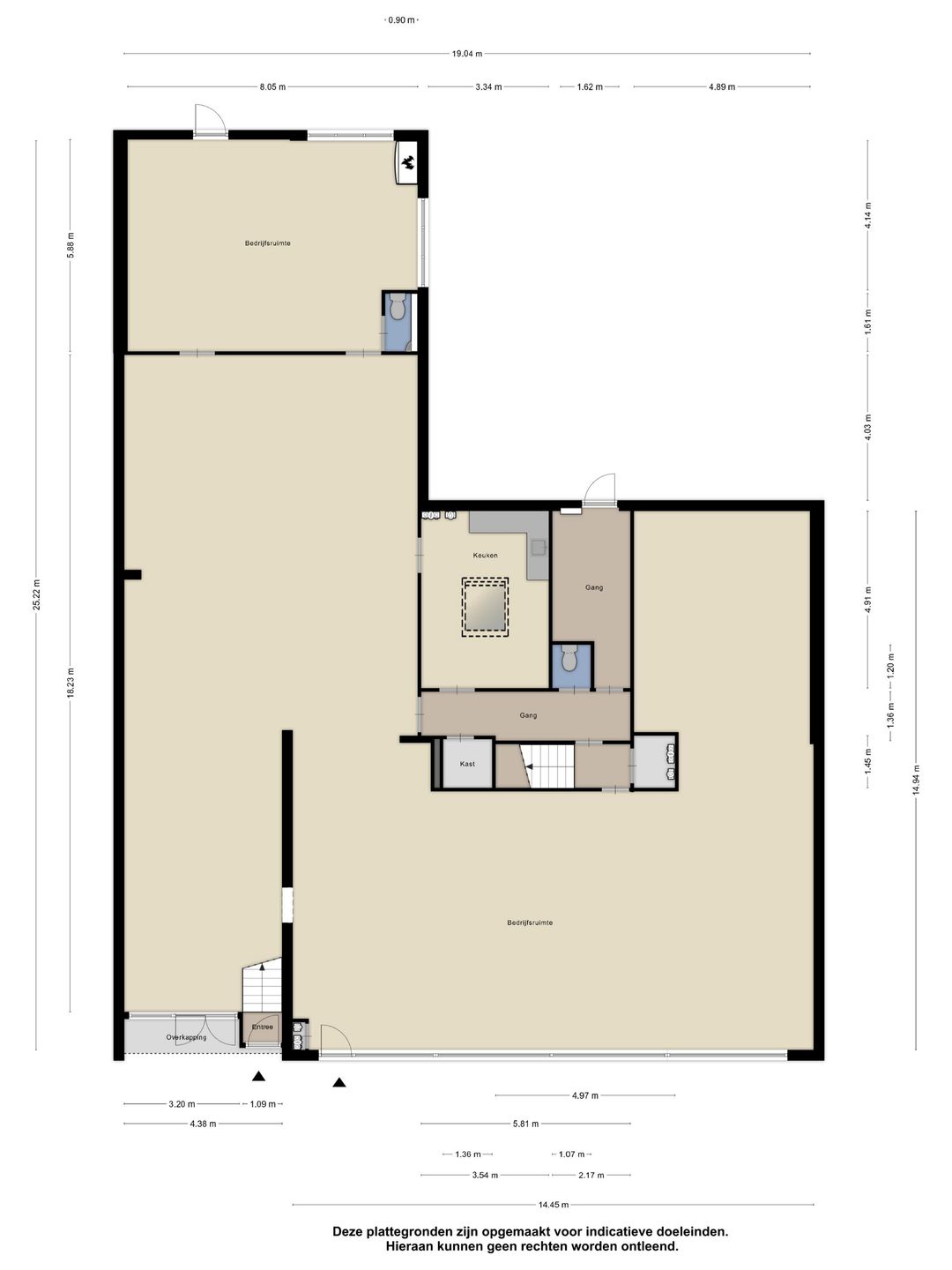
Gelegen in het centrum van Wieringerwerf biedt VLIEG Bedrijfsmakelaars dit ruime winkelpand van circa 365 m² VVO op de begane grond aan. Het object beschikt over een brede glazen pui met uitstekende zichtbaarheid en daglichttoetreding, alsmede een open en flexibel indeelbare verkoopruimte met achtergelegen werk-/opslagruimte en pantry.

Dankzij de prominente ligging in het dorpscentrum en de goede bereikbaarheid biedt dit pand uitstekende mogelijkheden voor detailhandel, dienstverlening of andere centrumgerichte functies.

PARKEREN
Parkeren kan (gratis) voor de deur of in de nabije omgeving.

BEREIKBAARHEID
Het pand is centraal gelegen in het dorpscentrum, omringd door diverse landelijke winkelketens. In de directe omgeving bevindt zich o.a. de Lidl, Albert Heijn, Action en Kruidvat. De afslag naar de Rijksweg A7 ligt op zeer korte afstand, wat zorgt voor een uitstekende verbindingen met omliggende plaatsen. Ook met het openbaar vervoer is de locatie goed te bereiken, er is een busstation op loopafstand.

BESTEMMING
Het object is gelegen binnen de bestemming Centrum en biedt daarmee ruime gebruiksmogelijkheden, waaronder:
- Detailhandel
- Kantoren
- Dienstverlening
- Bedrijven in categorie 1 en 2 (conform Staat van Bedrijfsactiviteiten)
- Horeca (categorie I t/m IV, indien op de verbeelding toegestaan)

Vastgesteld in bestemmingsplan Wieringerwerf - Gemeente Hollands Kroon - 27-01-2011.

HUURPRIJS
€ 2.150,- excl. btw per maand.

HUURTERMIJN
In overleg.

SERVICEKOSTEN
Geen. Huurder dient zelf contractant te worden van de nutsleveranciers.

AANVAARDING
Per direct.

HUURPRIJSAANPASSING
Jaarlijks, op basis van de wijziging van het maandprijsindexcijfer volgens de consumentenprijsindex (CPI) reeks CPI-Alle Huishoudens (2015 = 100), gepubliceerd door het Centraal Bureau voor de Statistiek (CBS).

OVERIGE CONDITIES
Huurovereenkomst op basis van het standaardmodel van de Raad voor Onroerende Zaken (ROZ), zoals gehanteerd door de Nederlandse Vereniging van Makelaars in onroerend goed (NVM).

ZEKERHEIDSTELLING
Bankgarantie of waarborgsom ter grootte van drie maanden huur inclusief btw.

COURTAGE
VLIEG Bedrijfsmakelaars OG behartigt de belangen van de verhuurder. Als huurder bent u ons derhalve geen courtage verschuldigd.

INFORMATIE
Voor verdere informatie of voor het maken van een afspraak bent u altijd welkom bij:
VLIEG Bedrijfsmakelaars OG
Robijnstraat 7
1812 RB Alkmaar
072 541 41 41

Kenmerken

Overdracht

Huurprijs
€ 2.150 per maand
Aangeboden sinds
Status
Beschikbaar
Aanvaarding
Per direct beschikbaar

Bouw

Hoofdfunctie
Winkel met showroom
Mogelijke functie(s)
Bedrijfsruimte en kantoorruimte
Soort bouw
Bestaande bouw
Bouwjaar
1967

Oppervlakten

Oppervlakte
365 m²
Verkoopvloeroppervlakte
317 m²

Indeling

Aantal bouwlagen
1 bouwlaag

Energie

Energielabel
A

Omgeving

Ligging
Winkelcentrum en in woonwijk
Bijdrage winkeliersvereniging
Nee
Welstandsklasse
C1

Kaart

Kaart laden...

Kadastrale grens Bebouwing

Reistijd

Krijg inzicht in de bereikbaarheid van dit object vanuit bijvoorbeeld een openbaar vervoer station of vanuit een adres.

Terpstraat 39-a

€ 2.150 /mnd