Omschrijving
Zeist bevindt zich in het midden van de provincie Utrecht en kent circa 66.000 inwoners met omliggende dorpen als Austerlitz, Bosch en Duin, Den Dolder en Huis ter Heide. Zeist heeft met een groot winkelcentrum een omvangrijk verzorgingsgebied.
Object
Op de Slotlaan zijn de belangrijkste publiekstrekkers van Zeist geclusterd en zien we daardoor een hoogwaardige constante passantenstroom. Deze levendige en prominente laan is, naast één van de belangrijke doorgaande wegen van Zeist, een hoogwaardige winkelstraat. De locatie is uitstekend bereikbaar met zowel eigen als openbaar vervoer. De op- en afritten van de A28 en A27 bevinden zich slechts op enkele minuten rijden. Het centraal busstation bevindt zich op loopafstand. In de directe omgeving bevinden zich een parfumerie, barbier en kledingreparatie en heeft een goede passantenstroom van met name auto en fiets verkeer.
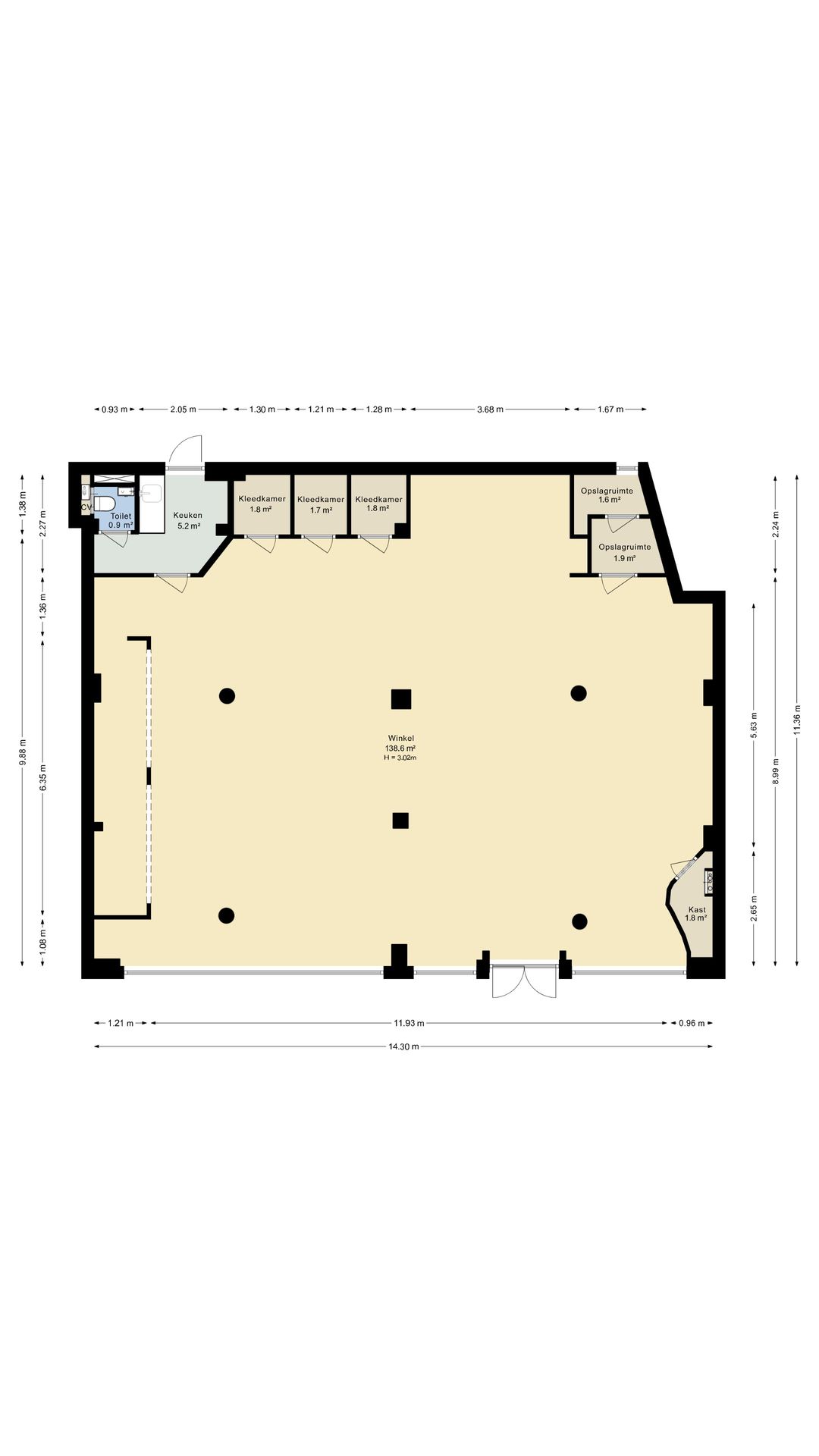
Vloeroppervlak
Van het complex is geen NEN 2580 meetrapport beschikbaar. De winkel omvat totaal circa 157 m² VVO.
Opleveringsniveau
Het gehuurde wordt casco verhuurd, inclusief de navolgende voorzieningen:
-winkelpui;
-toilet;
-pantry.
Parkeergelegenheid
De winkelruimte is centraal gesitueerd met in de nabije omgeving voldoende parkeervoorzieningen op openbaar terrein, in de nabij gelegen parkeergarages, alsmede op de Slotlaan zelf.
Huurprijs
De aanvangshuurprijs bedraagt € 2.350,- per maand, exclusief BTW.
Huurbetaling
De huurbetalingsverplichting dient per maand vooruit betaald te worden door middel van een automatische incasso.
Servicekosten
Huurder dient de meters betreffende gas, water en elektra op haar naam te doen stellen en het verbruik rechtstreeks te voldoen aan de desbetreffende openbare nutsbedrijven.
Huurtermijn
5 jaar met 5 optiejaren, waarbij een opzegtermijn wordt gehanteerd van 12 maanden. Afwijkende huurperiode bespreekbaar.
Aanvaarding
In overleg.
Zekerheidsstelling
Bij ondertekening van de huurovereenkomst wordt een bankgarantie of waarborgsom verlangd ter grootte van drie maanden
huurbetalingsverplichting en de verschuldigde BTW over het gehele bedrag.
Huurprijsindexering
Jaarlijks, voor het eerst één jaar na de huuringangsdatum, wordt de laatst geldende huurprijs verhoogd op basis van het maandprijsindexcijfer volgens de consumentenprijsindex (CPI) reeks alle huishoudens (2015 = 100), gepubliceerd door het Centraal Bureau
voor de Statistiek (CBS). De huurprijs zal géén daling ondergaan.
Huurovereenkomst
De op te stellen huurovereenkomst is conform de overeenkomst die door de Raad voor Onroerende Zaken in 2025 is vastgesteld en zoals
gehanteerd door de Nederlandse Vereniging van Makelaars (NVM) met de bijbehorende algemene bepalingen.
Bestemming
Het vigerende bestemmingsplan van de Gemeente Driebergen-Rijsenburg geeft aan dat de winkelruimte uitermate geschikt is voor het gebruik voor:
•detailhandel;
•dienstverlening;
•maatschappelijke voorzieningen;
•horeca.
Huurder dient zelf zijn exploitatie te toetsen aan het vigerende bestemmingsplan.
Gunning
De verhuurder behoudt zich het recht van gunning voor.
Object
Op de Slotlaan zijn de belangrijkste publiekstrekkers van Zeist geclusterd en zien we daardoor een hoogwaardige constante passantenstroom. Deze levendige en prominente laan is, naast één van de belangrijke doorgaande wegen van Zeist, een hoogwaardige winkelstraat. De locatie is uitstekend bereikbaar met zowel eigen als openbaar vervoer. De op- en afritten van de A28 en A27 bevinden zich slechts op enkele minuten rijden. Het centraal busstation bevindt zich op loopafstand. In de directe omgeving bevinden zich een parfumerie, barbier en kledingreparatie en heeft een goede passantenstroom van met name auto en fiets verkeer.
Vloeroppervlak
Van het complex is geen NEN 2580 meetrapport beschikbaar. De winkel omvat totaal circa 157 m² VVO.
Opleveringsniveau
Het gehuurde wordt casco verhuurd, inclusief de navolgende voorzieningen:
-winkelpui;
-toilet;
-pantry.
Parkeergelegenheid
De winkelruimte is centraal gesitueerd met in de nabije omgeving voldoende parkeervoorzieningen op openbaar terrein, in de nabij gelegen parkeergarages, alsmede op de Slotlaan zelf.
Huurprijs
De aanvangshuurprijs bedraagt € 2.350,- per maand, exclusief BTW.
Huurbetaling
De huurbetalingsverplichting dient per maand vooruit betaald te worden door middel van een automatische incasso.
Servicekosten
Huurder dient de meters betreffende gas, water en elektra op haar naam te doen stellen en het verbruik rechtstreeks te voldoen aan de desbetreffende openbare nutsbedrijven.
Huurtermijn
5 jaar met 5 optiejaren, waarbij een opzegtermijn wordt gehanteerd van 12 maanden. Afwijkende huurperiode bespreekbaar.
Aanvaarding
In overleg.
Zekerheidsstelling
Bij ondertekening van de huurovereenkomst wordt een bankgarantie of waarborgsom verlangd ter grootte van drie maanden
huurbetalingsverplichting en de verschuldigde BTW over het gehele bedrag.
Huurprijsindexering
Jaarlijks, voor het eerst één jaar na de huuringangsdatum, wordt de laatst geldende huurprijs verhoogd op basis van het maandprijsindexcijfer volgens de consumentenprijsindex (CPI) reeks alle huishoudens (2015 = 100), gepubliceerd door het Centraal Bureau
voor de Statistiek (CBS). De huurprijs zal géén daling ondergaan.
Huurovereenkomst
De op te stellen huurovereenkomst is conform de overeenkomst die door de Raad voor Onroerende Zaken in 2025 is vastgesteld en zoals
gehanteerd door de Nederlandse Vereniging van Makelaars (NVM) met de bijbehorende algemene bepalingen.
Bestemming
Het vigerende bestemmingsplan van de Gemeente Driebergen-Rijsenburg geeft aan dat de winkelruimte uitermate geschikt is voor het gebruik voor:
•detailhandel;
•dienstverlening;
•maatschappelijke voorzieningen;
•horeca.
Huurder dient zelf zijn exploitatie te toetsen aan het vigerende bestemmingsplan.
Gunning
De verhuurder behoudt zich het recht van gunning voor.
Kaart
Kaart laden...
Kadastrale grens
Bebouwing
Reistijd
Krijg inzicht in de bereikbaarheid van dit object vanuit bijvoorbeeld een openbaar vervoer station of vanuit een adres.