Hoofdstraat 58 7921 AN Zuidwolde (DR)
- Nieuw
Huurprijs op aanvraag
Omschrijving
TE HUUR: ca. 215 m² zeer moderne en representatieve WINKELRUIMTE op een bijzonder fraaie en in het oog springende A1 locatie in het centrum van Zuidwolde! De winkel is gelegen op de begane grond van een fraai ontworpen en mooi gebouwd pand op een toplocatie in het centrum van Zuidwolde. De ligging aan de hoek Hoofdstraat-Meppelerweg - Steenbergerweg is erg uniek en garandeert een uitstekende zichtlocatie en een zeer goede bereikbaarheid. Het pand is in 2000 gebouwd, waarbij kwalitatief uitstekende materialen zijn verwerkt in het prachtige beeldbepalende ontwerp. Het pand heeft een frontbreedte van circa 12 meter en verkeert in goede conditie. Er zijn gratis parkeerplaatsen direct voor en er zijn drie plaatsen naast het pand.
Ligging
Het object is zeer gunstig gelegen in het winkelcentrum van Zuidwolde, op een uitstekende bereikbare en markante locatie met zeer vlotte aansluitingen op de op- en afritten van de A28 en de N48, waarmee het object voor een meer regionaal georiënteerde winkel geschikt is.
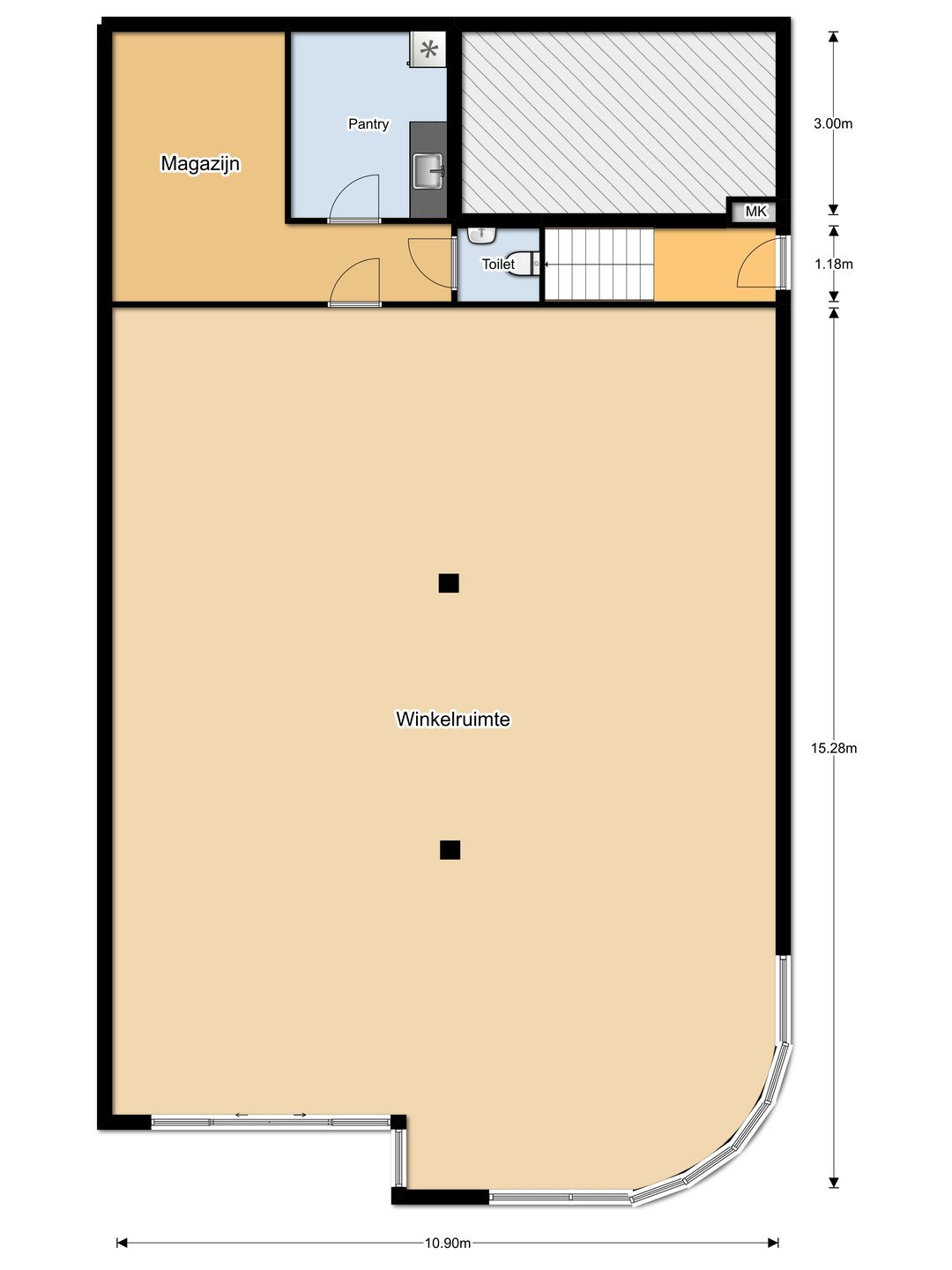
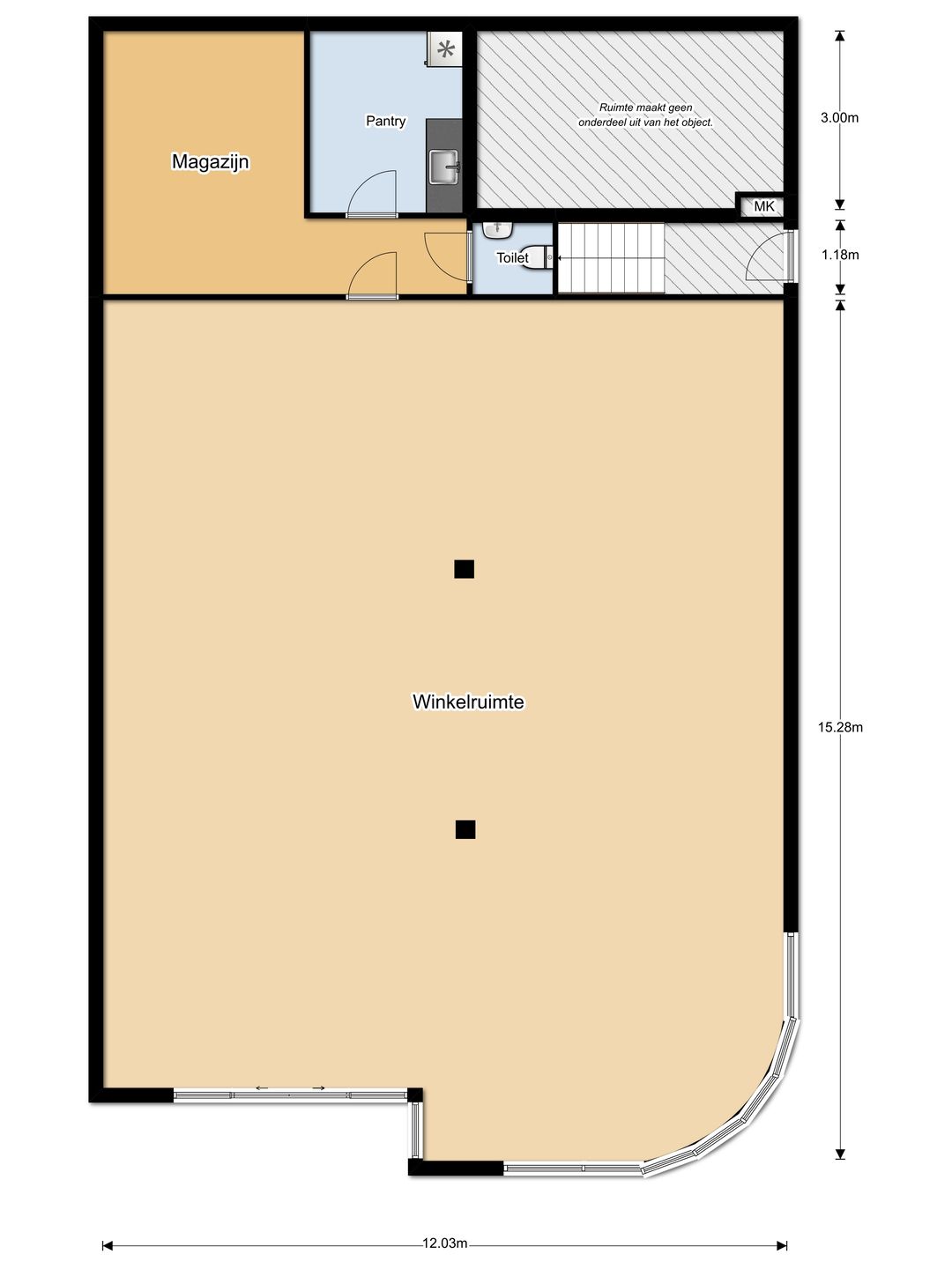
Oppervlakte:
De bedrijfsruimte is ongeveer 215 m² groot (BVO) en de verhuurbare oppervlakte is circa 200 m². Dit bestaat uit moderne en gebruiksklare winkelruimte met toiletruimte, magazijn/berging en een pantry. De locatie leent zich ook heel goed voor een dienstverlenende organisatie of een combinatie van beide.
Opleveringsniveau:
De ruimte zal in de huidige staat worden opgeleverd en is o.a. voorzien van:
- systeemplafond met verlichting
- cv-ketel, radiator en warmtegordijn (*)
- airconditioning (jaar 2020)*)
- automatische toegangsdeur
- toiletruimte en keuken
- uitgebreide bekabeling t.b.v. verlichting enz.
* de kosten voor jaarlijks (preventief) onderhoud worden als servicelasten doorberekend aan de huurder. Eventueel toekomstige vervanging van de cv-ketel en/of warmtegordijn en/of airco zijn voor rekening van de verhuurder
Parkeergelegenheid:
Direct naast en voor het pand kan gratis worden geparkeerd.
Huurprijs:
Nader overeen te komen te vermeerderen met omzetbelasting
Huurtermijn
Bij voorkeur 5 jaar + 5 optiejaren
Huurbetaling:
Per maand vooruit te betalen
Waarborgsom:
Huurder dient ter zekerheidsstelling bij aanvang huur een borgsom te voldoen ter grootte van 3 maanden huur.
Aanvaarding:
Het object is op korte termijn te aanvaarden, in overleg met de verhuurder
Huurprijs aanpassing
De huurprijs zal jaarlijks worden aangepast overeenkomstig de indexering conform CBS, reeks CPI alle huishoudens.
Voorbehoud
De gunning aan een huurder is voorbehouden aan de verhuurder
Ligging
Het object is zeer gunstig gelegen in het winkelcentrum van Zuidwolde, op een uitstekende bereikbare en markante locatie met zeer vlotte aansluitingen op de op- en afritten van de A28 en de N48, waarmee het object voor een meer regionaal georiënteerde winkel geschikt is.
Oppervlakte:
De bedrijfsruimte is ongeveer 215 m² groot (BVO) en de verhuurbare oppervlakte is circa 200 m². Dit bestaat uit moderne en gebruiksklare winkelruimte met toiletruimte, magazijn/berging en een pantry. De locatie leent zich ook heel goed voor een dienstverlenende organisatie of een combinatie van beide.
Opleveringsniveau:
De ruimte zal in de huidige staat worden opgeleverd en is o.a. voorzien van:
- systeemplafond met verlichting
- cv-ketel, radiator en warmtegordijn (*)
- airconditioning (jaar 2020)*)
- automatische toegangsdeur
- toiletruimte en keuken
- uitgebreide bekabeling t.b.v. verlichting enz.
* de kosten voor jaarlijks (preventief) onderhoud worden als servicelasten doorberekend aan de huurder. Eventueel toekomstige vervanging van de cv-ketel en/of warmtegordijn en/of airco zijn voor rekening van de verhuurder
Parkeergelegenheid:
Direct naast en voor het pand kan gratis worden geparkeerd.
Huurprijs:
Nader overeen te komen te vermeerderen met omzetbelasting
Huurtermijn
Bij voorkeur 5 jaar + 5 optiejaren
Huurbetaling:
Per maand vooruit te betalen
Waarborgsom:
Huurder dient ter zekerheidsstelling bij aanvang huur een borgsom te voldoen ter grootte van 3 maanden huur.
Aanvaarding:
Het object is op korte termijn te aanvaarden, in overleg met de verhuurder
Huurprijs aanpassing
De huurprijs zal jaarlijks worden aangepast overeenkomstig de indexering conform CBS, reeks CPI alle huishoudens.
Voorbehoud
De gunning aan een huurder is voorbehouden aan de verhuurder
Kenmerken
Overdracht
- Huurprijs
- Huurprijs op aanvraag
- Aangeboden sinds
-
- Status
- Beschikbaar
- Aanvaarding
- In overleg
Bouw
- Hoofdfunctie
- Winkel met showroom
- Soort bouw
- Bestaande bouw
- Bouwjaar
- 2000
Oppervlakten
- Oppervlakte
- 200 m²
- Verkoopvloeroppervlakte
- 180 m²
- Breedte gevel
- 15 m
Indeling
- Aantal bouwlagen
- 1 bouwlaag
Energie
- Energielabel
- Niet beschikbaar
Omgeving
- Ligging
- Stadscentrum/dorpskern
- Bereikbaarheid
- Bushalte op minder dan 500 m, NS Intercitystation op 5000 m of meer en snelwegafrit op 3000 m tot 4000 m
- Bijdrage winkeliersvereniging
- Nee
- Welstandsklasse
- A1
Parkeergelegenheid
- Parkeerplaatsen
- 3 niet-overdekte parkeerplaatsen
NVM makelaar
Foto's