Windestraat 31 7559 HS Hengelo (OV)
€ 1.500 /mnd
Omschrijving
TE HUUR PRAKTIJKRUIMTEN - BEHANDELKAMERS
Voor de verhuur bieden wij u aan de Windestraat 31 te Hengelo, een functioneel object van circa 135 m². Het pand is gelegen in de wijk 'Slangenbeek', een levendige omgeving met goede voorzieningen en openbaar vervoer in de directe nabijheid. Dankzij de centrale ligging binnen de woonwijk en de praktische indeling leent het object zich uitstekend voor uiteenlopende gebruiksmogelijkheden.
BESTEMMINGSPLAN
“Hengelo Noord, Slangenbeek” met als enkelbestemming “wonen”
Het object beschikt op dit moment over een persoonsgebonden maatschappelijke bestemming, welke door de gemeente Hengelo is toegekend. Bij verhuur vervalt deze specifieke toestemming en dient de nieuwe huurder, indien gewenst gebruik in strijd is met het geldende bestemmingsplan, zelf een verzoek tot herziening of afwijking van de bestemming in te dienen bij de gemeente.
Voor meer gedetailleerde informatie verwijzen we u naar de website: omgevingswet.overheid.nl/regels-op-de-kaart/zoeken/locatie
KADASTRAAL
Gemeente Hengelo (O), Sectie , Nummer 3345
BOUWJAAR
2008.
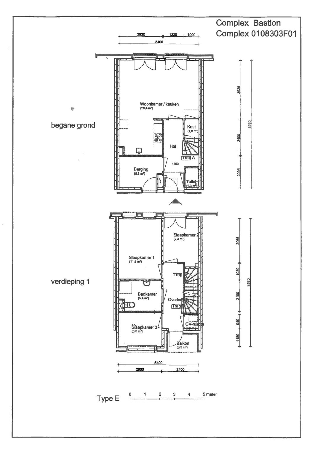
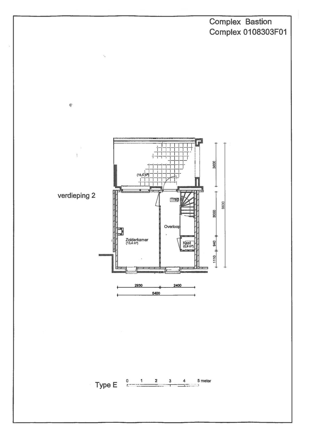
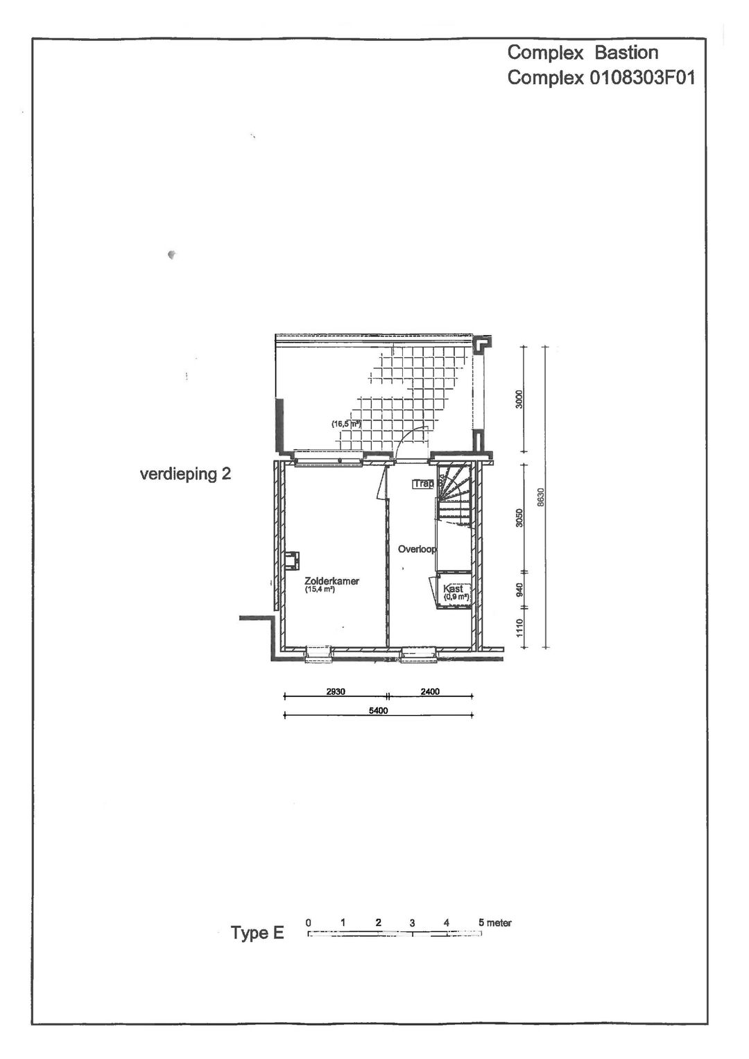
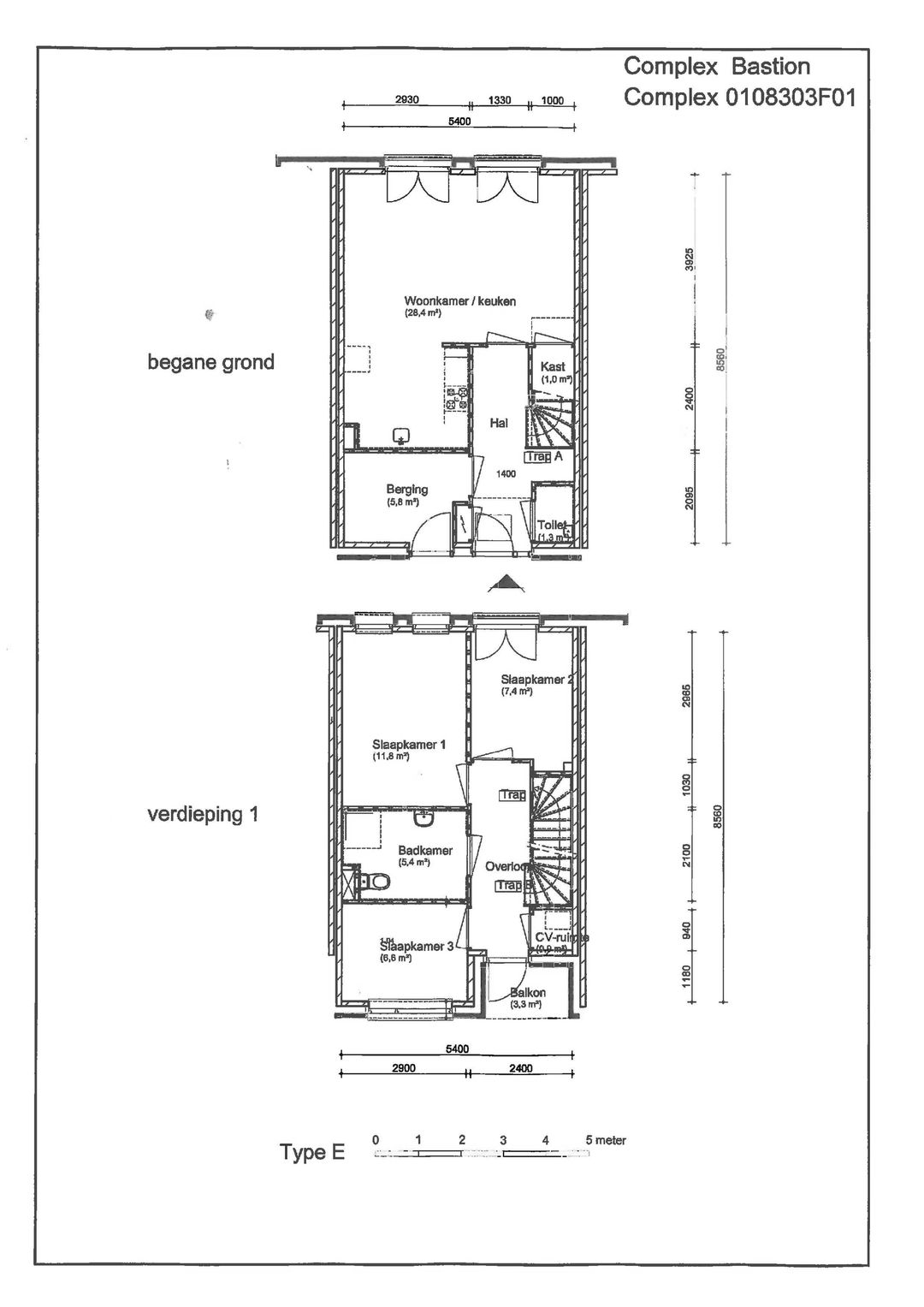
INDELING EN OPPERVLAKTE(EN)
De totale verhuurbare oppervlakte van het onderhavige object bedraagt circa 135 m² en is als volgt onderverdeeld:
- ca. 46 m² maatschappelijk op de begane grond.
- ca. 43 m² maatschappelijk op de eerste verdieping.
- ca. 3 m² overig/ balkon op de eerste verdieping.
- ca. 27 m² maatschappelijk op de tweede verdieping.
- ca. 16 m² overig/ dakterras op de tweede verdieping.
De oppervlakten zijn gemeten door verhurend makelaar uit een kopie bouwtekening. Het opgegeven metrage is derhalve indicatief; er kunnen geen rechten aan worden ontleend noch kan er sprake zijn van enige verrekening achteraf.
OPLEVERINGSNIVEAU
Het object wordt opgeleverd met o.a. de volgende voorzieningen:
- CV installatie met radiatoren
- Verlichting
- Toilet
- Pantry
HUURPRIJS
€ 1.500-- per maand, NIET te vermeerderen met btw.
HUURTERMIJN
5 jaar.
VERLENGINGSTERMIJN
Met aansluitende periode van telkens 5 jaar.
OPZEGTERMIJN
12 maanden voorafgaande aan de expiratiedatum.
BTW
Er is geen sprake van een verhuur met btw.
ZEKERHEIDSSTELLING
Doorlopende bankgarantie of waarborgsom ter grootte van 3 maanden huur inclusief eventuele servicekosten.
INDEXERING
Jaarlijks, voor het eerst één jaar na huuringangsdatum, op basis van de wijziging van het maandprijsindexcijfer volgens de consumentenprijsindex (CPI), reeks CPI - Alle huishoudens (2015=100), gepubliceerd door het Centraal Bureau voor de Statistiek (CBS). De huurprijs zal nimmer minder bedragen dan de huurprijs van het voorafgaande jaar.
BEREIKBAARHEID
Windestraat 31 is gelegen in de wijk Slangenbeek in Hengelo (O), op korte afstand van uitvalswegen richting de A1 en N743, waardoor omliggende plaatsen zoals Borne, Almelo en Enschede snel bereikbaar zijn. Het object bevindt zich nabij diverse bushaltes met directe verbindingen naar het NS-station Hengelo en het stadscentrum. In de directe omgeving is ruime gratis parkeergelegenheid aanwezig, wat de locatie goed toegankelijk maakt voor zowel medewerkers als bezoeker.
OMGEVINGSFACTOREN
Windestraat 31 is gelegen in de wijk Slangenbeek, een ruim opgezette woonwijk in Hengelo (O) met een mix van maatschappelijke voorzieningen, zorgaanbieders en kleinschalige bedrijvigheid. In de directe omgeving bevinden zich onder meer een gezondheidscentrum, basisscholen, winkelvoorzieningen en openbaar vervoer. De locatie leent zich uitstekend voor praktijken, dienstverlening of kleinschalig kantoor, mede dankzij de rustige maar centrale ligging binnen de wijk.
LOCATIEAANDUIDING
Het object is gelegen aan de Windestraat 31 in Hengelo (O), in de wijk Slangenbeek. Deze locatie bevindt zich in een rustige, woongerichte omgeving met diverse voorzieningen op korte afstand. Dankzij de centrale ligging binnen de wijk en de goede bereikbaarheid per auto en openbaar vervoer is het pand uitstekend toegankelijk voor zowel gebruikers als bezoekers.
PARKEREN
Rondom het object is gratis openbare parkeergelegenheid beschikbaar.
AANVAARDING
In overleg.
VOORBEHOUD
Definitieve goedkeuring opdrachtgever en/of verhuurder.
Voor de verhuur bieden wij u aan de Windestraat 31 te Hengelo, een functioneel object van circa 135 m². Het pand is gelegen in de wijk 'Slangenbeek', een levendige omgeving met goede voorzieningen en openbaar vervoer in de directe nabijheid. Dankzij de centrale ligging binnen de woonwijk en de praktische indeling leent het object zich uitstekend voor uiteenlopende gebruiksmogelijkheden.
BESTEMMINGSPLAN
“Hengelo Noord, Slangenbeek” met als enkelbestemming “wonen”
Het object beschikt op dit moment over een persoonsgebonden maatschappelijke bestemming, welke door de gemeente Hengelo is toegekend. Bij verhuur vervalt deze specifieke toestemming en dient de nieuwe huurder, indien gewenst gebruik in strijd is met het geldende bestemmingsplan, zelf een verzoek tot herziening of afwijking van de bestemming in te dienen bij de gemeente.
Voor meer gedetailleerde informatie verwijzen we u naar de website: omgevingswet.overheid.nl/regels-op-de-kaart/zoeken/locatie
KADASTRAAL
Gemeente Hengelo (O), Sectie , Nummer 3345
BOUWJAAR
2008.
INDELING EN OPPERVLAKTE(EN)
De totale verhuurbare oppervlakte van het onderhavige object bedraagt circa 135 m² en is als volgt onderverdeeld:
- ca. 46 m² maatschappelijk op de begane grond.
- ca. 43 m² maatschappelijk op de eerste verdieping.
- ca. 3 m² overig/ balkon op de eerste verdieping.
- ca. 27 m² maatschappelijk op de tweede verdieping.
- ca. 16 m² overig/ dakterras op de tweede verdieping.
De oppervlakten zijn gemeten door verhurend makelaar uit een kopie bouwtekening. Het opgegeven metrage is derhalve indicatief; er kunnen geen rechten aan worden ontleend noch kan er sprake zijn van enige verrekening achteraf.
OPLEVERINGSNIVEAU
Het object wordt opgeleverd met o.a. de volgende voorzieningen:
- CV installatie met radiatoren
- Verlichting
- Toilet
- Pantry
HUURPRIJS
€ 1.500-- per maand, NIET te vermeerderen met btw.
HUURTERMIJN
5 jaar.
VERLENGINGSTERMIJN
Met aansluitende periode van telkens 5 jaar.
OPZEGTERMIJN
12 maanden voorafgaande aan de expiratiedatum.
BTW
Er is geen sprake van een verhuur met btw.
ZEKERHEIDSSTELLING
Doorlopende bankgarantie of waarborgsom ter grootte van 3 maanden huur inclusief eventuele servicekosten.
INDEXERING
Jaarlijks, voor het eerst één jaar na huuringangsdatum, op basis van de wijziging van het maandprijsindexcijfer volgens de consumentenprijsindex (CPI), reeks CPI - Alle huishoudens (2015=100), gepubliceerd door het Centraal Bureau voor de Statistiek (CBS). De huurprijs zal nimmer minder bedragen dan de huurprijs van het voorafgaande jaar.
BEREIKBAARHEID
Windestraat 31 is gelegen in de wijk Slangenbeek in Hengelo (O), op korte afstand van uitvalswegen richting de A1 en N743, waardoor omliggende plaatsen zoals Borne, Almelo en Enschede snel bereikbaar zijn. Het object bevindt zich nabij diverse bushaltes met directe verbindingen naar het NS-station Hengelo en het stadscentrum. In de directe omgeving is ruime gratis parkeergelegenheid aanwezig, wat de locatie goed toegankelijk maakt voor zowel medewerkers als bezoeker.
OMGEVINGSFACTOREN
Windestraat 31 is gelegen in de wijk Slangenbeek, een ruim opgezette woonwijk in Hengelo (O) met een mix van maatschappelijke voorzieningen, zorgaanbieders en kleinschalige bedrijvigheid. In de directe omgeving bevinden zich onder meer een gezondheidscentrum, basisscholen, winkelvoorzieningen en openbaar vervoer. De locatie leent zich uitstekend voor praktijken, dienstverlening of kleinschalig kantoor, mede dankzij de rustige maar centrale ligging binnen de wijk.
LOCATIEAANDUIDING
Het object is gelegen aan de Windestraat 31 in Hengelo (O), in de wijk Slangenbeek. Deze locatie bevindt zich in een rustige, woongerichte omgeving met diverse voorzieningen op korte afstand. Dankzij de centrale ligging binnen de wijk en de goede bereikbaarheid per auto en openbaar vervoer is het pand uitstekend toegankelijk voor zowel gebruikers als bezoekers.
PARKEREN
Rondom het object is gratis openbare parkeergelegenheid beschikbaar.
AANVAARDING
In overleg.
VOORBEHOUD
Definitieve goedkeuring opdrachtgever en/of verhuurder.
Kenmerken
Overdracht
- Huurprijs
- € 1.500 per maand
- Aangeboden sinds
-
- Status
- Beschikbaar
- Aanvaarding
- In overleg
Bouw
- Hoofdfunctie
- Zorginstelling
- Soort bouw
- Bestaande bouw
- Bouwjaar
- 2008
Oppervlakten
- Oppervlakte
- 135 m²
Energie
- Energielabel
- Niet beschikbaar
Omgeving
- Ligging
- In woonwijk
Foto's