Veemarkt 96-98 1019 DE Amsterdam
- Verhuurd onder voorbehoud
€ 43.000 /jr
Omschrijving
Veemarkt 96-98
Bedrijvencentrum De Veemarkt
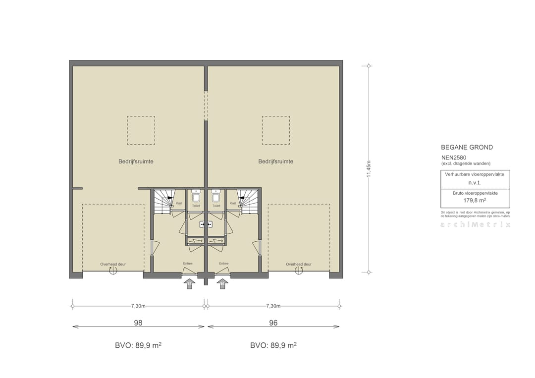
Op bedrijvencentrum De Veemarkt wordt een bedrijfsruimte van circa 220 m² te huur aangeboden, bestaande uit twee naast elkaar gelegen units die intern met elkaar zijn verbonden.
De begane grond is volledig ingericht als productiekeuken en daarmee uitermate geschikt voor ondernemers in de foodsector. De ruimte is functioneel opgezet en beschikt over twee overheaddeuren, wat bijdraagt aan een efficiënte logistiek. Vanwege deze specifieke inrichting is het gebruik beperkt tot een productiekeuken.
Op de eerste verdieping bevinden zich twee kantoorruimtes, wat zorgt voor een prettige en duidelijke scheiding tussen productie en kantooractiviteiten.
Voor de aanwezige inventaris wordt een overnamesom gevraagd; nadere informatie hierover kan in overleg worden verstrekt. Een inventarislijst is op aanvraag beschikbaar.
Dankzij de gunstige ligging en uitstekende bereikbaarheid vormt bedrijvencentrum De Veemarkt een aantrekkelijke vestigingslocatie voor ondernemers die op zoek zijn naar een professioneel ingerichte productieruimte.
Gebouw
Bedrijvencentrum De Veemarkt bestaat uit zes verschillende gebouwen welke rond 1990 gebouwd zijn. De bouwblokken hebben verschillende indelingen en uiteenlopende metrages.
Het terrein bestaat in totaal uit circa 21.500 m² kantoor-/bedrijfsruimte, verdeeld in units vanaf circa 60 m². Een combinatie van bedrijfsruimte met bijbehorende kantoorruimte behoort tot de mogelijkheden. Alle ruimten zijn zeer functioneel en hebben een karakteristieke uitstraling. Vanwege de grote verscheidenheid aan verschillende typen kantoor- en bedrijfsruimten, is het terrein uitstekend geschikt voor uiteenlopende doeleinden, variërend van productie en opslag tot bedrijven die een creatieve ruimte zoeken en kantoorgebruik in algemene zin.
Buurt + hotspots
Het bedrijvencentrum ligt zeer gunstig ten opzichte van Amsterdam Centrum, Oost en IJburg. Bedrijvencentrum De Veemarkt is uitstekend bereikbaar met eigen vervoer en zeer goed bereikbaar met openbaar vervoer, in tegenstelling tot veel alternatieve bedrijventerreinen.
Het Cruquiuseiland is grotendeels getransformeerd naar een levendig woon- en werkgebied met nieuwe architectuur afgewisseld met gerestaureerde historische gebouwen. Diverse creatieve bedrijven uit de mode-, interieur-, architectuur- en media-branche hebben zich reeds op het Cruquiuseiland gevestigd.
Aan de Entrepothaven, die tussen het Cruquiuseiland en het Borneo eiland in gelegen is, zijn diverse horecagelegenheden gevestigd zoals The Harbour Club Amsterdam Oost en Cruquius Local. In het nabijgelegen Flevopark is Proeflokaal ‘t Nieuwe Diep een echte hotspots verscholen tussen het groen en met een terras aan het Nieuwe Diep.
Bereikbaarheid
Bedrijvencentrum De Veemarkt is uitstekend bereikbaar met zowel eigen vervoer als met openbaar vervoer. Dit in tegenstelling tot veel alternatieve bedrijventerreinen. Via de Veelaan en Cruquiusweg is een snelle verbinding met centrumring S100 waardoor zowel de binnenstad als verschillende stadsdelen snel bereikt kunnen worden. Vanaf de Ringweg A10-noord is het bedrijvencentrum binnen circa zes minuten bereikbaar vanaf afslag S114 via de Piet-Heintunnel.
Aan de Veelaan is tevens een bushalte waar de lijnen 22 en 65 vertrekken waardoor een directe verbinden met Centraal Station mogelijk is. Op tien minuten loopafstand is de tramhalte Rietlandpark gelegen waar tram 26 stopt. Deze zorgt tevens voor een uitstekende verbinding met Centraal Station.
Parkeergelegenheid
Parkeren is mogelijk op de openbare weg middels betaling of een vergunningensysteem. Informatie over voorwaarden en mogelijkheden voor verkrijging van een (bedrijfs-) vergunning en eventuele wachttijd is op te vragen via de gemeente Amsterdam.
Huurtermijn
Vijf jaar met aansluitende verlengingsperioden van vijf jaar.
Bijzonderheden
• bedrijfsruimte met twee overheaddeuren
• twee aparte kantoorruimten op de eerste verdieping
• ideaal geschikt voor partijen in de food sector
• populair bedrijvencentrum
• overnamesom voor huidige aanwezige inventaris
• locatie nabij het centrum en diverse uitvalswegen
Bedrijvencentrum De Veemarkt
Op bedrijvencentrum De Veemarkt wordt een bedrijfsruimte van circa 220 m² te huur aangeboden, bestaande uit twee naast elkaar gelegen units die intern met elkaar zijn verbonden.
De begane grond is volledig ingericht als productiekeuken en daarmee uitermate geschikt voor ondernemers in de foodsector. De ruimte is functioneel opgezet en beschikt over twee overheaddeuren, wat bijdraagt aan een efficiënte logistiek. Vanwege deze specifieke inrichting is het gebruik beperkt tot een productiekeuken.
Op de eerste verdieping bevinden zich twee kantoorruimtes, wat zorgt voor een prettige en duidelijke scheiding tussen productie en kantooractiviteiten.
Voor de aanwezige inventaris wordt een overnamesom gevraagd; nadere informatie hierover kan in overleg worden verstrekt. Een inventarislijst is op aanvraag beschikbaar.
Dankzij de gunstige ligging en uitstekende bereikbaarheid vormt bedrijvencentrum De Veemarkt een aantrekkelijke vestigingslocatie voor ondernemers die op zoek zijn naar een professioneel ingerichte productieruimte.
Gebouw
Bedrijvencentrum De Veemarkt bestaat uit zes verschillende gebouwen welke rond 1990 gebouwd zijn. De bouwblokken hebben verschillende indelingen en uiteenlopende metrages.
Het terrein bestaat in totaal uit circa 21.500 m² kantoor-/bedrijfsruimte, verdeeld in units vanaf circa 60 m². Een combinatie van bedrijfsruimte met bijbehorende kantoorruimte behoort tot de mogelijkheden. Alle ruimten zijn zeer functioneel en hebben een karakteristieke uitstraling. Vanwege de grote verscheidenheid aan verschillende typen kantoor- en bedrijfsruimten, is het terrein uitstekend geschikt voor uiteenlopende doeleinden, variërend van productie en opslag tot bedrijven die een creatieve ruimte zoeken en kantoorgebruik in algemene zin.
Buurt + hotspots
Het bedrijvencentrum ligt zeer gunstig ten opzichte van Amsterdam Centrum, Oost en IJburg. Bedrijvencentrum De Veemarkt is uitstekend bereikbaar met eigen vervoer en zeer goed bereikbaar met openbaar vervoer, in tegenstelling tot veel alternatieve bedrijventerreinen.
Het Cruquiuseiland is grotendeels getransformeerd naar een levendig woon- en werkgebied met nieuwe architectuur afgewisseld met gerestaureerde historische gebouwen. Diverse creatieve bedrijven uit de mode-, interieur-, architectuur- en media-branche hebben zich reeds op het Cruquiuseiland gevestigd.
Aan de Entrepothaven, die tussen het Cruquiuseiland en het Borneo eiland in gelegen is, zijn diverse horecagelegenheden gevestigd zoals The Harbour Club Amsterdam Oost en Cruquius Local. In het nabijgelegen Flevopark is Proeflokaal ‘t Nieuwe Diep een echte hotspots verscholen tussen het groen en met een terras aan het Nieuwe Diep.
Bereikbaarheid
Bedrijvencentrum De Veemarkt is uitstekend bereikbaar met zowel eigen vervoer als met openbaar vervoer. Dit in tegenstelling tot veel alternatieve bedrijventerreinen. Via de Veelaan en Cruquiusweg is een snelle verbinding met centrumring S100 waardoor zowel de binnenstad als verschillende stadsdelen snel bereikt kunnen worden. Vanaf de Ringweg A10-noord is het bedrijvencentrum binnen circa zes minuten bereikbaar vanaf afslag S114 via de Piet-Heintunnel.
Aan de Veelaan is tevens een bushalte waar de lijnen 22 en 65 vertrekken waardoor een directe verbinden met Centraal Station mogelijk is. Op tien minuten loopafstand is de tramhalte Rietlandpark gelegen waar tram 26 stopt. Deze zorgt tevens voor een uitstekende verbinding met Centraal Station.
Parkeergelegenheid
Parkeren is mogelijk op de openbare weg middels betaling of een vergunningensysteem. Informatie over voorwaarden en mogelijkheden voor verkrijging van een (bedrijfs-) vergunning en eventuele wachttijd is op te vragen via de gemeente Amsterdam.
Huurtermijn
Vijf jaar met aansluitende verlengingsperioden van vijf jaar.
Bijzonderheden
• bedrijfsruimte met twee overheaddeuren
• twee aparte kantoorruimten op de eerste verdieping
• ideaal geschikt voor partijen in de food sector
• populair bedrijvencentrum
• overnamesom voor huidige aanwezige inventaris
• locatie nabij het centrum en diverse uitvalswegen
Kenmerken
Overdracht
- Huurprijs
- € 43.000 per jaar
- Servicekosten
- € 5 per vierkante meter per jaar (21% BTW van toepassing)
- Aangeboden sinds
-
- Status
- Verhuurd onder voorbehoud
- Aanvaarding
- In overleg
Bouw
- Hoofdfunctie
- Bedrijfshal
- Soort bouw
- Bestaande bouw
- Bouwperiode
- 1991-2000
Oppervlakten
- Oppervlakte
- 220 m²
- Bedrijfshal oppervlak
- 180 m²
- Kantoor oppervlak
- 40 m²
Indeling
- Aantal bouwlagen
- 1 bouwlaag
- Voorzieningen
- Overheaddeuren, betonvloer, toilet en pantry
Energie
- Energielabel
- E
Omgeving
- Ligging
- Bedrijventerrein
NVM makelaar
Foto's