Het Wolbert 13 7547 RA Enschede
€ 2.200 /mnd
Omschrijving
Objectomschrijving:
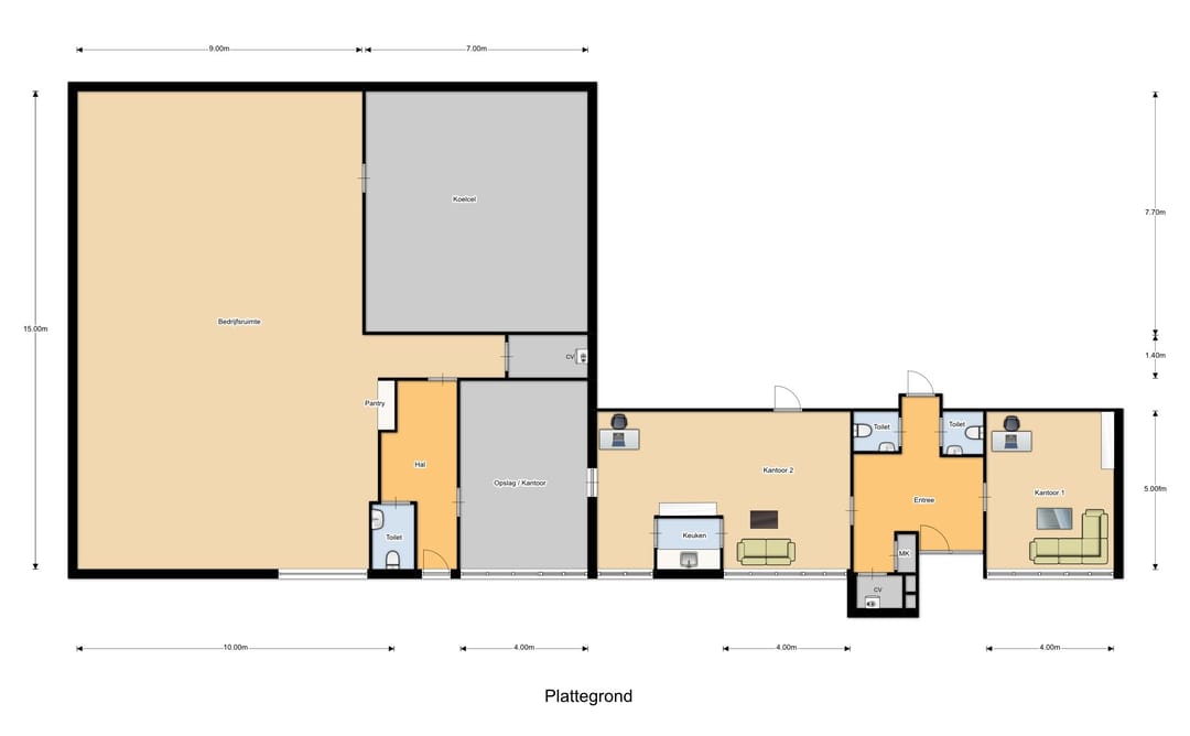
Multifunctionele ruimte met kantoor- en bedrijfsruimte en koelcel gelegen op bedrijventerrein Havengebied. Het gebouw heeft een totale oppervlakte van ca. 315 m². De kantoorruimte is voorzien van 2 ruime kantoren met eventuele spreekkamer. Aan de voorzijde bevinden zich 5 eigen parkeerplaatsen (algemeen gebruik). De bedrijfsruimte is o.a. voorzien een overheaddeur (3 x 3 m.) en een koelcel. De koelcel heeft een oppervlakte van ca. 55 m². De bedrijfsruimte heeft een vrije hoogte van ca. 3,20 meter. Het gebouw leent zich uitstekend voor een onderneming in de dranken- en/ of voedselindustrie (o.a. catering, webshop etc.).
Locatie
Het Wolbert 13, 7547 RA Enschede (naast Willem Dijk Groenten Fruit)
Verhuurbaar vloeroppervlak
Kantoorruimte: ca. 120 m²
Bedrijfsruimte: ca. 195 m² (vrije hoogte ca. 3,2 meter)
Totaal: ca. 315 m²
Bereikbaarheid
Het object is uitstekend gelegen op het bedrijventerrein Havengebied en nabij de afslag van de snelweg A35.
Parkeren
Er zijn 5 parkeerplaatsen voor het gebouw beschikbaar voor algemeen gebruik.
Indeling:
Kantoor: Ruime entree met 2 separate toiletten, 2 ruime kantoorruimtes en een afgesloten pantry.
Bedrijfsruimte: Overheaddeur, separate deur, toilet, hal, opslagruimte, pantry, koelcel en bedrijfsruimte.
Voorzieningen:
- systeemplafond met verlichting
- vloerafwerking
- verwarming
- 3 toiletten
- Pantry
- alarm (huurder dient een modem te plaatsen)
- overheaddeur
- koelcel (7 x 8 m.)
Huurcondities
Huurprijs: € 2.200,-- excl. BTW per maand
Huurtermijn: In overleg.
Huurverlenging: In overleg.
Opzegtermijn: In overleg.
Ingangsdatum: In overleg
Huurindexering: Aanpassing van de huurprijs geschiedt jaarlijks op basis van de reeks consumentenprijsindexcijfers (alle huishoudens).
Bankgarantie/ waarborgsom: Huurder dient een bankgarantie/ waarborgsom af te geven ter grootte van 3 maanden huur + BTW
Multifunctionele ruimte met kantoor- en bedrijfsruimte en koelcel gelegen op bedrijventerrein Havengebied. Het gebouw heeft een totale oppervlakte van ca. 315 m². De kantoorruimte is voorzien van 2 ruime kantoren met eventuele spreekkamer. Aan de voorzijde bevinden zich 5 eigen parkeerplaatsen (algemeen gebruik). De bedrijfsruimte is o.a. voorzien een overheaddeur (3 x 3 m.) en een koelcel. De koelcel heeft een oppervlakte van ca. 55 m². De bedrijfsruimte heeft een vrije hoogte van ca. 3,20 meter. Het gebouw leent zich uitstekend voor een onderneming in de dranken- en/ of voedselindustrie (o.a. catering, webshop etc.).
Locatie
Het Wolbert 13, 7547 RA Enschede (naast Willem Dijk Groenten Fruit)
Verhuurbaar vloeroppervlak
Kantoorruimte: ca. 120 m²
Bedrijfsruimte: ca. 195 m² (vrije hoogte ca. 3,2 meter)
Totaal: ca. 315 m²
Bereikbaarheid
Het object is uitstekend gelegen op het bedrijventerrein Havengebied en nabij de afslag van de snelweg A35.
Parkeren
Er zijn 5 parkeerplaatsen voor het gebouw beschikbaar voor algemeen gebruik.
Indeling:
Kantoor: Ruime entree met 2 separate toiletten, 2 ruime kantoorruimtes en een afgesloten pantry.
Bedrijfsruimte: Overheaddeur, separate deur, toilet, hal, opslagruimte, pantry, koelcel en bedrijfsruimte.
Voorzieningen:
- systeemplafond met verlichting
- vloerafwerking
- verwarming
- 3 toiletten
- Pantry
- alarm (huurder dient een modem te plaatsen)
- overheaddeur
- koelcel (7 x 8 m.)
Huurcondities
Huurprijs: € 2.200,-- excl. BTW per maand
Huurtermijn: In overleg.
Huurverlenging: In overleg.
Opzegtermijn: In overleg.
Ingangsdatum: In overleg
Huurindexering: Aanpassing van de huurprijs geschiedt jaarlijks op basis van de reeks consumentenprijsindexcijfers (alle huishoudens).
Bankgarantie/ waarborgsom: Huurder dient een bankgarantie/ waarborgsom af te geven ter grootte van 3 maanden huur + BTW
Kenmerken
Overdracht
- Huurprijs
- € 2.200 per maand
- Aangeboden sinds
-
- Status
- Beschikbaar
- Aanvaarding
- In overleg
Bouw
- Hoofdfunctie
- Bedrijfshal
- Soort bouw
- Bestaande bouw
- Bouwperiode
- 1971-1980
Oppervlakten
- Oppervlakte
- 315 m²
- Bedrijfshal oppervlak
- 195 m²
- Kantoor oppervlak
- 120 m²
- Vrije hoogte
- 3,2 m
Indeling
- Aantal bouwlagen
- 1 bouwlaag
- Voorzieningen
- Overheaddeuren, krachtstroom, betonvloer, toilet, pantry, inbouwarmaturen en te openen ramen
Energie
- Energielabel
- A
Omgeving
- Ligging
- Bedrijventerrein
- Bereikbaarheid
- Bushalte op 500 m tot 1000 m, NS Intercitystation op 2000 m tot 3000 m en snelwegafrit op 2000 m tot 3000 m
Parkeergelegenheid
- Parkeerplaatsen
- 5 niet-overdekte parkeerplaatsen
Foto's
Plattegrond
Plattegrond