Omschrijving
Te huur bedrijfsruimte
Argonstraat 78, 2718 SN Zoetermeer
ALGEMEEN
Dit object is ideaal voor bedrijven die ruimte, bereikbaarheid en representativiteit willen combineren. Of het nu gaat om een groeiende onderneming die zoekt naar extra meters of een gevestigde organisatie die waarde hecht aan een moderne werkomgeving: Argonstraat 78 biedt de juiste basis voor succes.
De Argonstraat maakt onderdeel uit van het moderne bedrijventerrein Lansinghage, eenvoudig bereikbaar vanaf rijksweg A-12 (Den Haag-Utrecht) via de Oostweg en de Lansinghageweg. Ook met het openbaar vervoer is het terrein goed bereikbaar; diverse bussen stoppen op loopafstand met aansluiting op het NS Station Zoetermeer.
In het ruim opgezette bedrijvenpark Zuidermeent is 1 bedrijfsunit voor verhuur beschikbaar. Zuidermeent bestaat uit twee relatief kleine bedrijfsgebouwen, welke afzonderlijk in units zijn onderverdeeld en in combinatie met elkaar gehuurd kunnen worden. Door de kleinschaligheid van dit complex en de goede ligging is dit een zeer gewilde locatie voor bedrijven in en rondom Zoetermeer.
KADASTRALE GEGEVENS
Gemeente : Zegwaard
Sectie : D
Nummer : 2536 en 2537 (gedeeltelijk)
Bouwjaar : omstreeks 1990
BESTEMMING
De bestemming van de Argonstraat 78 is "bedrijventerrein".
Bestemmingsplan : Kwadrant / van Tuyll sportpark / Brinkhage / Lansinghage
Planstatus : onherroepelijk (16-08-2013)
Overheid : gemeente Zoetermeer
Enkelbestemming : bedrijventerrein
Functieaanduiding : bedrijf tot en met categorie 4.2 detailhandel perifeer
Maatvoering : maximum bebouwingspercentage terrein: 70% / maximum bouwhoogte: 14 m¹
INDELING + OPLEVERINGSNIVEAU
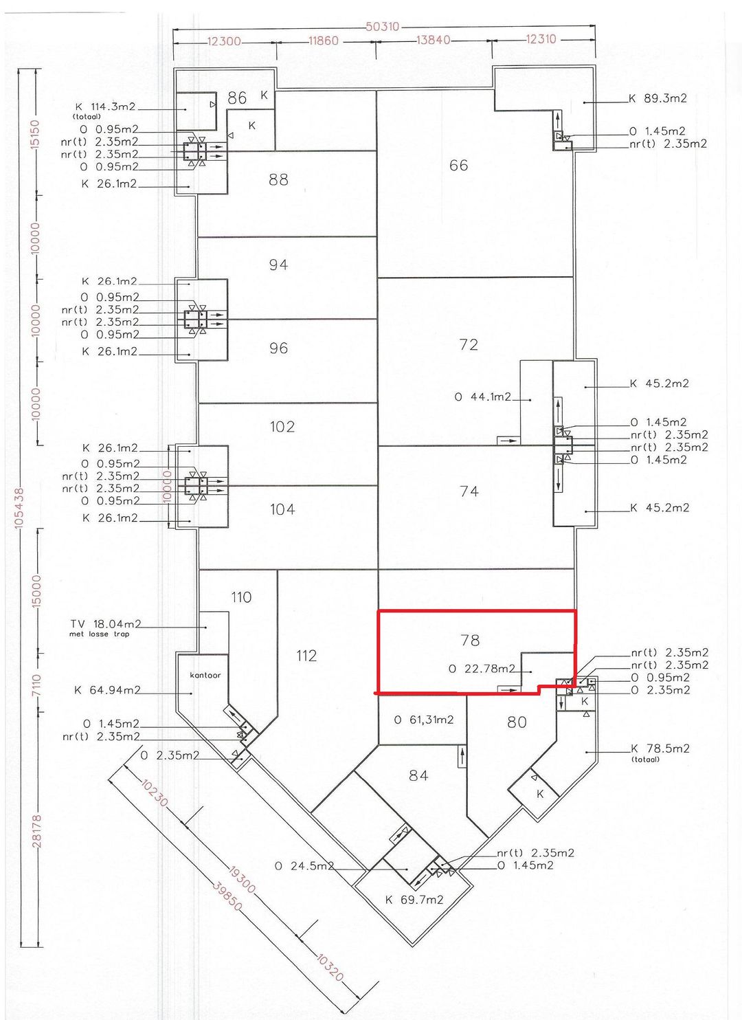
Momenteel is de volgende unit voor verhuur beschikbaar:
Argonstraat 78 (unit B11)
bedrijfsruimte : ca. 212 m²
kantoorruimte : ca. 40 m² (inbouw)
Op eigen terrein zijn ruim voldoende parkeerplaatsen aanwezig.
De unit wordt opgeleverd met de volgende voorzieningen:
Bedrijfsruimte
- betonvloer
- vloerbelasting 2.000 kg/m²
- led-verlichting
- lichtstraat
- gasheater
- overheaddeur
- toilet
- pantry
- krachtstroomaansluiting
Kantoorruimte
- systeemplafonds met verlichtingsarmaturen
- toilet.
HUURCONDITIES
Huurprijs : € 2.375,- per maand excl. BTW
(Huurprijs : € 28.500,- per jaar excl. BTW)
Huuringangsdatum : in overleg
Huurtermijn : in overleg
Huurprijsherziening : de huurprijs wordt jaarlijks geïndexeerd op basis van het Consumenten Prijsindexcijfer (CPI), reeks Alle huishoudens (2015=100) van het CBS. Voor het eerst een jaar na de huuringangsdatum.
Huurbetaling : per kwartaal vooruit middels een machtiging tot automatische incasso
Servicekosten : € 5,- per m² per jaar excl. BTW als voorschot voor de kosten van onder andere:
- onderhoud buitenterrein en groenvoorziening;
- onderhoud cv -installatie;
- onderhoud overheaddeur;
- nachtbewaking;
- onderhoud brandhaspels;
- onderhoud riool;
- onderhoud bewegwijzering;
- inspectie daken;
- administratiekosten 5 %.
Huurder dient zelf contracten aan te gaan wat betreft de nutsvoorzieningen (gas/water/elektra) en telefoon en internet.
Bankgarantie : gelijk aan 3 maanden huur + 3 maanden servicekosten + BTW
Voorbehoud : goedkeuring directie verhuurder / positief bedrijfsinformatierapport; één en ander ter beoordeling verhuurder
Contract : model door de Raad voor Onroerende Zaken (ROZ) op 5 maart 2025 vastgesteld en het model is tevens gepubliceerd op de website inclusief aanvullende bepalingen verhuurder.
BTW
Verhuurder wenst te opteren voor BTW.-belaste huur en verhuur. Ingeval huurder de BTW. niet kan verrekenen zal de huurprijs in overleg met huurder worden verhoogd ter compensatie van de gevolgen van het vervallen van de mogelijkheid om te opteren voor BTW.-belaste huur.
Energielabel : niet labelplichtig
Algemeen : de informatie betreffende de bedrijfsruimte aan de Argonstraat 78 te Zoetermeer is met zorg samengesteld. Voor de juistheid daarvan kan door Hopman en Schreuder Bedrijfshuisvesting BV geen aansprakelijkheid worden aanvaard, noch kan aan de vermelde gegevens enig recht worden ontleend. Alle opgegeven oppervlakten en afmetingen zijn indicatief. Deze informatie dient slechts als uitnodiging om in onderhandeling te treden en kan derhalve niet worden beschouwd als een aanbod of offerte. Van toepassing zijn de NVM voorwaarden.
Argonstraat 78, 2718 SN Zoetermeer
ALGEMEEN
Dit object is ideaal voor bedrijven die ruimte, bereikbaarheid en representativiteit willen combineren. Of het nu gaat om een groeiende onderneming die zoekt naar extra meters of een gevestigde organisatie die waarde hecht aan een moderne werkomgeving: Argonstraat 78 biedt de juiste basis voor succes.
De Argonstraat maakt onderdeel uit van het moderne bedrijventerrein Lansinghage, eenvoudig bereikbaar vanaf rijksweg A-12 (Den Haag-Utrecht) via de Oostweg en de Lansinghageweg. Ook met het openbaar vervoer is het terrein goed bereikbaar; diverse bussen stoppen op loopafstand met aansluiting op het NS Station Zoetermeer.
In het ruim opgezette bedrijvenpark Zuidermeent is 1 bedrijfsunit voor verhuur beschikbaar. Zuidermeent bestaat uit twee relatief kleine bedrijfsgebouwen, welke afzonderlijk in units zijn onderverdeeld en in combinatie met elkaar gehuurd kunnen worden. Door de kleinschaligheid van dit complex en de goede ligging is dit een zeer gewilde locatie voor bedrijven in en rondom Zoetermeer.
KADASTRALE GEGEVENS
Gemeente : Zegwaard
Sectie : D
Nummer : 2536 en 2537 (gedeeltelijk)
Bouwjaar : omstreeks 1990
BESTEMMING
De bestemming van de Argonstraat 78 is "bedrijventerrein".
Bestemmingsplan : Kwadrant / van Tuyll sportpark / Brinkhage / Lansinghage
Planstatus : onherroepelijk (16-08-2013)
Overheid : gemeente Zoetermeer
Enkelbestemming : bedrijventerrein
Functieaanduiding : bedrijf tot en met categorie 4.2 detailhandel perifeer
Maatvoering : maximum bebouwingspercentage terrein: 70% / maximum bouwhoogte: 14 m¹
INDELING + OPLEVERINGSNIVEAU
Momenteel is de volgende unit voor verhuur beschikbaar:
Argonstraat 78 (unit B11)
bedrijfsruimte : ca. 212 m²
kantoorruimte : ca. 40 m² (inbouw)
Op eigen terrein zijn ruim voldoende parkeerplaatsen aanwezig.
De unit wordt opgeleverd met de volgende voorzieningen:
Bedrijfsruimte
- betonvloer
- vloerbelasting 2.000 kg/m²
- led-verlichting
- lichtstraat
- gasheater
- overheaddeur
- toilet
- pantry
- krachtstroomaansluiting
Kantoorruimte
- systeemplafonds met verlichtingsarmaturen
- toilet.
HUURCONDITIES
Huurprijs : € 2.375,- per maand excl. BTW
(Huurprijs : € 28.500,- per jaar excl. BTW)
Huuringangsdatum : in overleg
Huurtermijn : in overleg
Huurprijsherziening : de huurprijs wordt jaarlijks geïndexeerd op basis van het Consumenten Prijsindexcijfer (CPI), reeks Alle huishoudens (2015=100) van het CBS. Voor het eerst een jaar na de huuringangsdatum.
Huurbetaling : per kwartaal vooruit middels een machtiging tot automatische incasso
Servicekosten : € 5,- per m² per jaar excl. BTW als voorschot voor de kosten van onder andere:
- onderhoud buitenterrein en groenvoorziening;
- onderhoud cv -installatie;
- onderhoud overheaddeur;
- nachtbewaking;
- onderhoud brandhaspels;
- onderhoud riool;
- onderhoud bewegwijzering;
- inspectie daken;
- administratiekosten 5 %.
Huurder dient zelf contracten aan te gaan wat betreft de nutsvoorzieningen (gas/water/elektra) en telefoon en internet.
Bankgarantie : gelijk aan 3 maanden huur + 3 maanden servicekosten + BTW
Voorbehoud : goedkeuring directie verhuurder / positief bedrijfsinformatierapport; één en ander ter beoordeling verhuurder
Contract : model door de Raad voor Onroerende Zaken (ROZ) op 5 maart 2025 vastgesteld en het model is tevens gepubliceerd op de website inclusief aanvullende bepalingen verhuurder.
BTW
Verhuurder wenst te opteren voor BTW.-belaste huur en verhuur. Ingeval huurder de BTW. niet kan verrekenen zal de huurprijs in overleg met huurder worden verhoogd ter compensatie van de gevolgen van het vervallen van de mogelijkheid om te opteren voor BTW.-belaste huur.
Energielabel : niet labelplichtig
Algemeen : de informatie betreffende de bedrijfsruimte aan de Argonstraat 78 te Zoetermeer is met zorg samengesteld. Voor de juistheid daarvan kan door Hopman en Schreuder Bedrijfshuisvesting BV geen aansprakelijkheid worden aanvaard, noch kan aan de vermelde gegevens enig recht worden ontleend. Alle opgegeven oppervlakten en afmetingen zijn indicatief. Deze informatie dient slechts als uitnodiging om in onderhandeling te treden en kan derhalve niet worden beschouwd als een aanbod of offerte. Van toepassing zijn de NVM voorwaarden.
Kaart
Kaart laden...
Kadastrale grens
Bebouwing
Reistijd
Krijg inzicht in de bereikbaarheid van dit object vanuit bijvoorbeeld een openbaar vervoer station of vanuit een adres.