Vleesstraat 26 5911 JE Venlo
Prijs op aanvraag
Omschrijving
Te Koop, beleggingspand – geheel verhuurd
Namens de eigenaar bieden wij het monumentale pand aan de Vleesstraat 26 en Ariënsplaats 2 en 2a te Venlo te koop aan.
Vleesstraat 26 – betreft een winkelruimte van (totaal) ca. 142 m² (BVO) op de begane grond, tevens is er een kelder aanwezig (thans niet in gebruik).
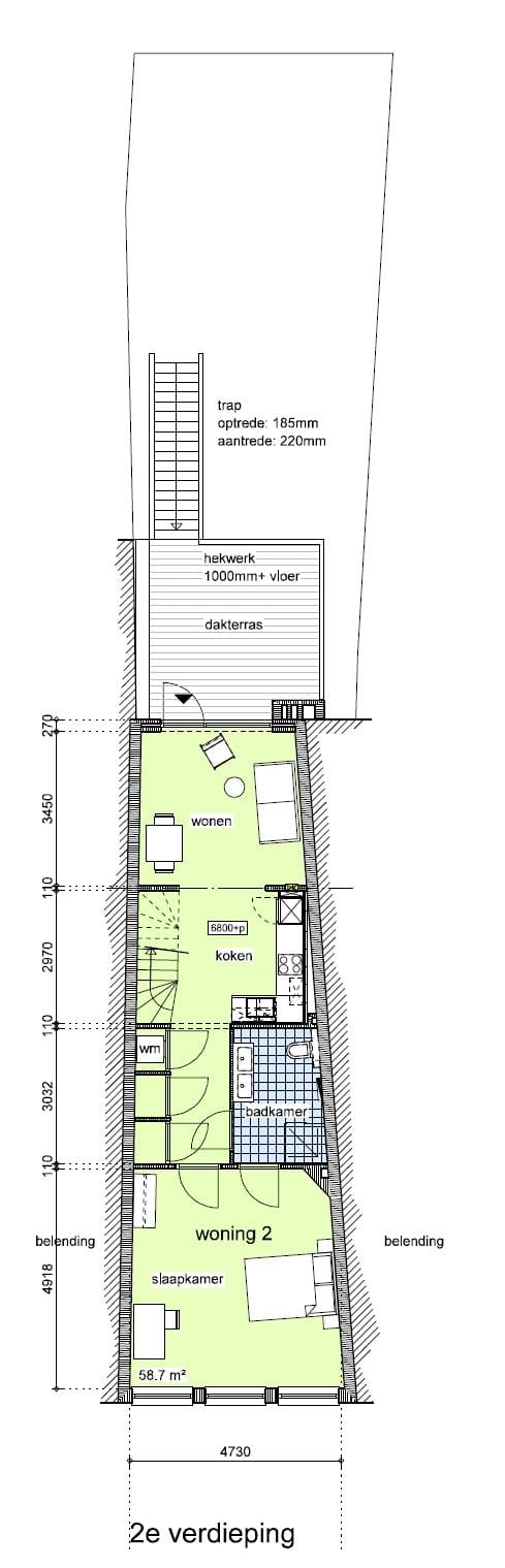
Ariënsplaats 2 en 2a – betreffen 2 luxe appartementen met eigen ingang en dakterras/balkon. De woningen hebben een oppervlakte van resp. ca. 76 en ca. 121 m².
Ligging:
Het pand ligt op een A1 winkellocatie (aan de voorzijde) aan de hoofdwinkelstraat van Venlo, de Vleesstraat. In de directe nabijheid van de aangeboden winkelruimte bevinden zich diverse tal van boetiekjes en (groot-) winkelketens zoals Douglas, Pasch, Hema, Kruidvat, Xenos en Etos.
Op korte afstand ligt enerzijds de sfeervolle Markt met het oude Stadhuis en divers horeca aanbod met gezellige terrassen. En anderzijds op een steenworp afstand van de Maasboulevard (met o.a. Mediamarkt en Primark) gelegen.
De appartementen zijn aan de achterzijde via de Ariënsplaats toegankelijk.
Bestemming:
De huidige bestemming is “Centrum -1”. Waarbij onder meer detailhandel, horeca van cat. 1 t/m 3 en cat. 5, consumentgerichte dienstverlening, wonen, cultuur en ontspanning zijn toegestaan.
Omgeving en Locatie:
Venlo is de grootste stad van Noord-Limburg en bedient een verzorgingsgebied van 15-20 kilometer in Nederland, met ruim 250.000 inwoners. Het Duitse verzorgingsgebied strekt zich uit tot 50 kilometer en telt 3,8 miljoen inwoners. De stad heeft door de ontwikkeling van de Maasboulevard, met onder andere de MediaMarkt, H&M en Primark, een enorme impuls gekregen als winkelstad. Het centrum van Venlo biedt een uitstekende bereikbaarheid, voldoende parkeermogelijkheden en een levendige sfeer, ideaal voor winkel- en woonbeleggingen.
Nadere informatie:
- De winkelruimte is per 15-10-2025 verhuurd met een 5-jarige huurovereenkomst (conform ROZ model winkelruimte) aan de winkelketen Lucardi.
- De appartementen zijn voor onbepaalde tijd verhuurd aan twee verschillende particuliere huurders.
- Alle drie de huurovereenkomsten kunnen jaarlijks geïndexeerde worden (conform CPI index).
- Kadastraal bekend: gemeente Venlo, sectie I, nummer 6334, groot 193 m².
- Het pand betreft een gemeentelijk monument.
- De winkelruimte is enkele jaren geleden compleet gemoderniseerd en is door Lucardi onlangs ook geheel naar eigen wens verbouwd.
- De appartementen zijn in 2025 opgeleverd, voorheen betrof dit één oude bovenwoning. De woningen verkeren derhalve in nieuwstaat.
- Asbestinventarisatierapportage is aanwezig.
Voor meer info of nadere inzage in (huur)gegevens kunt u contact met ons kantoor opnemen.
Namens de eigenaar bieden wij het monumentale pand aan de Vleesstraat 26 en Ariënsplaats 2 en 2a te Venlo te koop aan.
Vleesstraat 26 – betreft een winkelruimte van (totaal) ca. 142 m² (BVO) op de begane grond, tevens is er een kelder aanwezig (thans niet in gebruik).
Ariënsplaats 2 en 2a – betreffen 2 luxe appartementen met eigen ingang en dakterras/balkon. De woningen hebben een oppervlakte van resp. ca. 76 en ca. 121 m².
Ligging:
Het pand ligt op een A1 winkellocatie (aan de voorzijde) aan de hoofdwinkelstraat van Venlo, de Vleesstraat. In de directe nabijheid van de aangeboden winkelruimte bevinden zich diverse tal van boetiekjes en (groot-) winkelketens zoals Douglas, Pasch, Hema, Kruidvat, Xenos en Etos.
Op korte afstand ligt enerzijds de sfeervolle Markt met het oude Stadhuis en divers horeca aanbod met gezellige terrassen. En anderzijds op een steenworp afstand van de Maasboulevard (met o.a. Mediamarkt en Primark) gelegen.
De appartementen zijn aan de achterzijde via de Ariënsplaats toegankelijk.
Bestemming:
De huidige bestemming is “Centrum -1”. Waarbij onder meer detailhandel, horeca van cat. 1 t/m 3 en cat. 5, consumentgerichte dienstverlening, wonen, cultuur en ontspanning zijn toegestaan.
Omgeving en Locatie:
Venlo is de grootste stad van Noord-Limburg en bedient een verzorgingsgebied van 15-20 kilometer in Nederland, met ruim 250.000 inwoners. Het Duitse verzorgingsgebied strekt zich uit tot 50 kilometer en telt 3,8 miljoen inwoners. De stad heeft door de ontwikkeling van de Maasboulevard, met onder andere de MediaMarkt, H&M en Primark, een enorme impuls gekregen als winkelstad. Het centrum van Venlo biedt een uitstekende bereikbaarheid, voldoende parkeermogelijkheden en een levendige sfeer, ideaal voor winkel- en woonbeleggingen.
Nadere informatie:
- De winkelruimte is per 15-10-2025 verhuurd met een 5-jarige huurovereenkomst (conform ROZ model winkelruimte) aan de winkelketen Lucardi.
- De appartementen zijn voor onbepaalde tijd verhuurd aan twee verschillende particuliere huurders.
- Alle drie de huurovereenkomsten kunnen jaarlijks geïndexeerde worden (conform CPI index).
- Kadastraal bekend: gemeente Venlo, sectie I, nummer 6334, groot 193 m².
- Het pand betreft een gemeentelijk monument.
- De winkelruimte is enkele jaren geleden compleet gemoderniseerd en is door Lucardi onlangs ook geheel naar eigen wens verbouwd.
- De appartementen zijn in 2025 opgeleverd, voorheen betrof dit één oude bovenwoning. De woningen verkeren derhalve in nieuwstaat.
- Asbestinventarisatierapportage is aanwezig.
Voor meer info of nadere inzage in (huur)gegevens kunt u contact met ons kantoor opnemen.
Kenmerken
Overdracht
- Vraagprijs
- Prijs op aanvraag
- Aangeboden sinds
-
- Status
- Beschikbaar
- Aanvaarding
- In overleg
Bouw
- Hoofdfunctie
- Belegging
- Soort bouw
- Bestaande bouw
- Bouwperiode
- 1945-1959
Oppervlakten
- Oppervlakte
- 339 m²
- Perceel
- 193 m²
Energie
- Energielabel
- Niet beschikbaar
Omgeving
- Ligging
- Stadscentrum/dorpskern
- Bereikbaarheid
- Bushalte op minder dan 500 m en NS Intercitystation op minder dan 500 m
Beleggingsobject
- Huurders
- 3 huurders
- Verhuurd
- 339 m²
NVM makelaar
Foto's