Omschrijving
Forvalue biedt in gezamenlijkheid met Sinke Komejan Bedrijfsmakelaars dit omvangrijke complex te koop aan.
Aan de rand van Kapelle, op een markante locatie met een rijke historie, staat een veelzijdig object op een royaal perceel van circa 5.516 m². Het geheel bestaat uit een ruim hoofdgebouw en twee afzonderlijke, recent verbouwde hotelpaviljoens met elk vijf comfortabele kamers. Samen hebben de gebouwen een oppervlakte van circa 1.014 m² VVO, waardoor er een solide basis is voor uiteenlopende vormen van gebruik.
Het pand is gebouw op een caisson dat overbleef na de Watersnoodramp van 1953, wat het geheel een uniek karakter geeft. De huidige exploitatie bestaat uit een restaurant met meerdere zalen in het hoofdgebouw, gecombineerd met tien eigentijdse hotelkamers in de naastgelegen hotelgebouwen die gebruikt worden voor logies en shortstay.
Deze bestaande indeling maakt het object inzetbaar voor gastvrijheid, zakelijke bijeenkomsten en kleinschalig verblijf.
De kernwaarde van dit aanbod ligt echter in de gebouwen en het perceel zelf. De ruime maatvoering, het grote buitenterrein en de strategische ligging langs de A58 zorgen voor brede perspectieven voor herontwikkeling die aansluit bij de vraag uit de regio.
Het vormt daarmee een unieke kans voor (horeca)ondernemers, ontwikkelaars of investeerders die op zoek zijn naar een locatie met karakter, uitstekende bereikbarheid en potentieel voor toekomstgerichte initiatieven.
IN HET KORT
- Smokkelhoekweg 12, 4421 JH Kapelle
- Vrijstaand object met twee recent gerenoveerde hotelpaviljoens
- Vraagprijs: € 1.545.000,- k.k.
- Oppervlakte: 1.014 m² VVO / 1.181 m² BVO
- Perceeloppervlakte: 5.516 m²
- Bouwjaar: 1960 (hoofdgebouw) en 1983 (hotelpaviljoens)
USP’s
- Strategische ligging nabij de A58 met een uitstekende bereikbaarheid voor zowel lokaal als regionaal verkeer
- Ruim perceel dat veel mogelijkheden biedt voor verschillende toepassingen
- Royale oppervlakten met ruime indelingen en flexibiliteit voor verschillende toepassingen
- Voorzien van 90 zonnepanelen
- Veelzijdig potentieel naast het huidige gebruik
OPPERVLAKTES
Het hoofdgebouw heeft een oppervlakte van circa 807 m² VVO (circa 931 m² BVO) en de hotelpaviljoens hebben een gezamenlijke oppervlakte van circa 207 m² VVO (circa 250 m² BVO).
De vierkante meters zijn bepaald aan de hand van een meting ter plaatse. Er is een meetrapport conform NEN2580 beschikbaar. Desalniettemin kunnen (geringe) afwijkingen mogelijk zijn. Aan de genoemde oppervlakten kunnen derhalve geen rechten worden ontleend.
KADASTRALE GEGEVENS
Gemeente: Kapelle
Sectie: F
Nummer: 1830
Grootte: 5.516 m²
OMGEVINGSPLAN/BESTEMMING
Het object valt binnen het bestemmingsplan ‘Buitengebied 2e herziening’. De bestemming is ‘Horeca’ met op een gedeelte van het perceel de bestemmingen ‘Tuin’ en ‘Verkeer’. Tevens zijn de functieaanduidingen ‘specifieke vorm van horeca – 1’ en ‘horeca tot en met categorie 1’ alsmede de dubbelbestemming ‘Waarde – Archeologie 4’ van toepassing. Het bestemmingsplan is onherroepelijk vastgesteld op 24-02-2015.
Bovenstaande is een beknopte samenvatting van het huidige bestemmingsplan. Voor een volledige en gedetailleerde beschrijving adviseren wij u de website van het Omgevingsloket te raadplegen of contact met ons op te nemen.
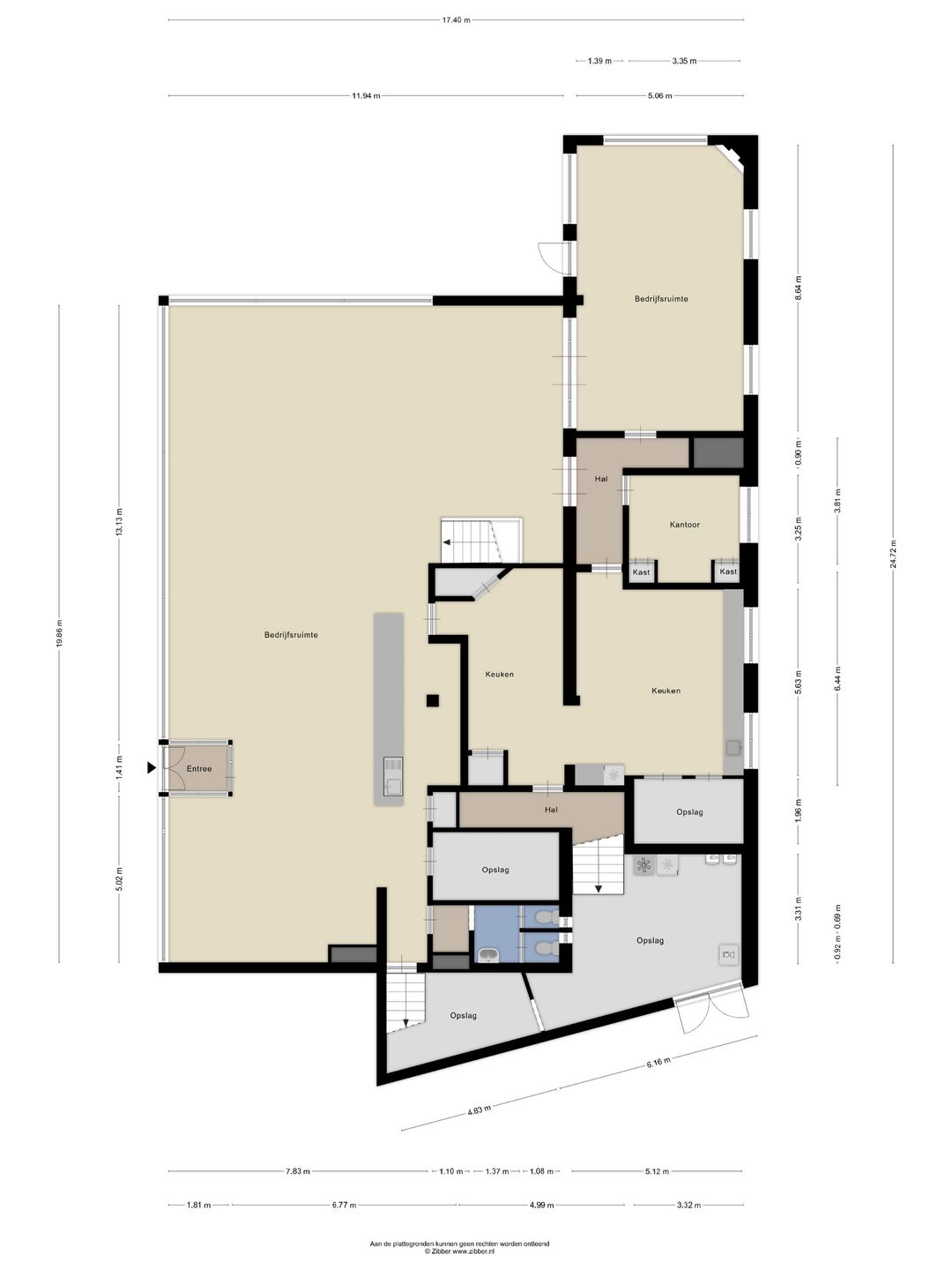
INDELING
Het hoofdgebouw is thans in gebruik als horecabedrijf voorzien van entree, restaurantruimte met bar, diverse zaalruimten met een capaciteit van 15 tot maximaal 60 personen, professionele en goed geoutilleerde keuken en spoelkeuken, toiletgroepen, kantoor en diverse verkeers-, opslag- en dienstruimten.
De twee hotelpaviljoens tellen beide vijf recent gerenoveerde en comfortabele hotelkamers voorzien van eigen terrassen met weids uitzicht.
Het perceel voorziet verder onder andere in een terras en een verhard parkeerterrein.
ENERGIELABEL
Energielabel D, geldig tot 11 januari 2029
KENMERKEN OVEREENKOMST
Ingeval u verdere interesse heeft en er uiteindelijk een overeenkomst tot stand komt, gelden tenminste de volgende bepalingen:
Voorbehouden verkoper:
Verkoop geschiedt onder voorbehoud definitieve goedkeuring eigenaar.
Koopovereenkomst:
De koop en verkoop van geschiedt op basis van het principe "as is, where is", in verband waarmee de huidige fiscale, bouwkundige, juridische, huurrechtelijke, publiekrechtelijke, milieukundige, technische en feitelijke toestand van het verkochte in alle opzichten door koper wordt aanvaard, evenals alle zichtbare en onzichtbare gebreken, en wordt vastgelegd in een koopovereenkomst overeenkomstig het NVM-model.
Zekerheidsstelling:
Een waarborgsom ter grootte van 10% van de koopsom te storten op rekening van of af te geven als bankgarantie bij de notaris direct na ondertekening van de koopovereenkomst.
Fiscaal:
Op dit moment bedraagt het tarief voor zakelijke transacties, zoals de aankoop van bedrijfspanden en beleggingsobjecten, 10,4%. Deze belasting komt volledig voor rekening van de koper.
DISCLAIMER
Deze informatie is door ons met de nodige zorgvuldigheid samengesteld. Onzerzijds wordt echter geen enkele aansprakelijkheid aanvaard voor enige onvolledigheid, onjuistheid of anderszins, dan wel de gevolgen daarvan. Alle opgegeven maten en oppervlakten zijn indicatief.
Voor gedetailleerde informatie verzoeken wij u contact met ons op te nemen.
Aan de rand van Kapelle, op een markante locatie met een rijke historie, staat een veelzijdig object op een royaal perceel van circa 5.516 m². Het geheel bestaat uit een ruim hoofdgebouw en twee afzonderlijke, recent verbouwde hotelpaviljoens met elk vijf comfortabele kamers. Samen hebben de gebouwen een oppervlakte van circa 1.014 m² VVO, waardoor er een solide basis is voor uiteenlopende vormen van gebruik.
Het pand is gebouw op een caisson dat overbleef na de Watersnoodramp van 1953, wat het geheel een uniek karakter geeft. De huidige exploitatie bestaat uit een restaurant met meerdere zalen in het hoofdgebouw, gecombineerd met tien eigentijdse hotelkamers in de naastgelegen hotelgebouwen die gebruikt worden voor logies en shortstay.
Deze bestaande indeling maakt het object inzetbaar voor gastvrijheid, zakelijke bijeenkomsten en kleinschalig verblijf.
De kernwaarde van dit aanbod ligt echter in de gebouwen en het perceel zelf. De ruime maatvoering, het grote buitenterrein en de strategische ligging langs de A58 zorgen voor brede perspectieven voor herontwikkeling die aansluit bij de vraag uit de regio.
Het vormt daarmee een unieke kans voor (horeca)ondernemers, ontwikkelaars of investeerders die op zoek zijn naar een locatie met karakter, uitstekende bereikbarheid en potentieel voor toekomstgerichte initiatieven.
IN HET KORT
- Smokkelhoekweg 12, 4421 JH Kapelle
- Vrijstaand object met twee recent gerenoveerde hotelpaviljoens
- Vraagprijs: € 1.545.000,- k.k.
- Oppervlakte: 1.014 m² VVO / 1.181 m² BVO
- Perceeloppervlakte: 5.516 m²
- Bouwjaar: 1960 (hoofdgebouw) en 1983 (hotelpaviljoens)
USP’s
- Strategische ligging nabij de A58 met een uitstekende bereikbaarheid voor zowel lokaal als regionaal verkeer
- Ruim perceel dat veel mogelijkheden biedt voor verschillende toepassingen
- Royale oppervlakten met ruime indelingen en flexibiliteit voor verschillende toepassingen
- Voorzien van 90 zonnepanelen
- Veelzijdig potentieel naast het huidige gebruik
OPPERVLAKTES
Het hoofdgebouw heeft een oppervlakte van circa 807 m² VVO (circa 931 m² BVO) en de hotelpaviljoens hebben een gezamenlijke oppervlakte van circa 207 m² VVO (circa 250 m² BVO).
De vierkante meters zijn bepaald aan de hand van een meting ter plaatse. Er is een meetrapport conform NEN2580 beschikbaar. Desalniettemin kunnen (geringe) afwijkingen mogelijk zijn. Aan de genoemde oppervlakten kunnen derhalve geen rechten worden ontleend.
KADASTRALE GEGEVENS
Gemeente: Kapelle
Sectie: F
Nummer: 1830
Grootte: 5.516 m²
OMGEVINGSPLAN/BESTEMMING
Het object valt binnen het bestemmingsplan ‘Buitengebied 2e herziening’. De bestemming is ‘Horeca’ met op een gedeelte van het perceel de bestemmingen ‘Tuin’ en ‘Verkeer’. Tevens zijn de functieaanduidingen ‘specifieke vorm van horeca – 1’ en ‘horeca tot en met categorie 1’ alsmede de dubbelbestemming ‘Waarde – Archeologie 4’ van toepassing. Het bestemmingsplan is onherroepelijk vastgesteld op 24-02-2015.
Bovenstaande is een beknopte samenvatting van het huidige bestemmingsplan. Voor een volledige en gedetailleerde beschrijving adviseren wij u de website van het Omgevingsloket te raadplegen of contact met ons op te nemen.
INDELING
Het hoofdgebouw is thans in gebruik als horecabedrijf voorzien van entree, restaurantruimte met bar, diverse zaalruimten met een capaciteit van 15 tot maximaal 60 personen, professionele en goed geoutilleerde keuken en spoelkeuken, toiletgroepen, kantoor en diverse verkeers-, opslag- en dienstruimten.
De twee hotelpaviljoens tellen beide vijf recent gerenoveerde en comfortabele hotelkamers voorzien van eigen terrassen met weids uitzicht.
Het perceel voorziet verder onder andere in een terras en een verhard parkeerterrein.
ENERGIELABEL
Energielabel D, geldig tot 11 januari 2029
KENMERKEN OVEREENKOMST
Ingeval u verdere interesse heeft en er uiteindelijk een overeenkomst tot stand komt, gelden tenminste de volgende bepalingen:
Voorbehouden verkoper:
Verkoop geschiedt onder voorbehoud definitieve goedkeuring eigenaar.
Koopovereenkomst:
De koop en verkoop van geschiedt op basis van het principe "as is, where is", in verband waarmee de huidige fiscale, bouwkundige, juridische, huurrechtelijke, publiekrechtelijke, milieukundige, technische en feitelijke toestand van het verkochte in alle opzichten door koper wordt aanvaard, evenals alle zichtbare en onzichtbare gebreken, en wordt vastgelegd in een koopovereenkomst overeenkomstig het NVM-model.
Zekerheidsstelling:
Een waarborgsom ter grootte van 10% van de koopsom te storten op rekening van of af te geven als bankgarantie bij de notaris direct na ondertekening van de koopovereenkomst.
Fiscaal:
Op dit moment bedraagt het tarief voor zakelijke transacties, zoals de aankoop van bedrijfspanden en beleggingsobjecten, 10,4%. Deze belasting komt volledig voor rekening van de koper.
DISCLAIMER
Deze informatie is door ons met de nodige zorgvuldigheid samengesteld. Onzerzijds wordt echter geen enkele aansprakelijkheid aanvaard voor enige onvolledigheid, onjuistheid of anderszins, dan wel de gevolgen daarvan. Alle opgegeven maten en oppervlakten zijn indicatief.
Voor gedetailleerde informatie verzoeken wij u contact met ons op te nemen.
Kaart
Kaart laden...
Kadastrale grens
Bebouwing
Reistijd
Krijg inzicht in de bereikbaarheid van dit object vanuit bijvoorbeeld een openbaar vervoer station of vanuit een adres.