Omschrijving
ALGEMEEN
Te huur representatieve kantoor-/prakrijkruimte gelegen aan de Sparrenlaan 3 te Hattem. Deze kantoor-/praktijkruimte is gelegen op de eerste verdieping en heeft een oppervlakte van ca. 53 m² incl. aandeel voor algemene ruimte. In het gebouw zijn meerdere zorg gerelateerde bedrijven gevestigd zoals: Buurtzorg en Psychologenpraktijk en Fysiotherapie . Dit maakt deze ruimte zeer geschikt als praktijkruimte.
INDELING
Bij de entree van de Sparrenlaan 3 zit een een gezamenlijke ontvangst en wachtruimte. Via een looptrap is de 1e verdieping te betreden waar de te huur aangeboden kantoor-/praktijkruimte is gelegen.
LOCATIE
De Sparrenlaan 3 te Hattem is gelegen op een op een zeer representatieve locatie in een groene villawijk. Het pand is zowel met de auto als met het ov uitstekend bereikbaar. Met de auto is de sparrenlaan 3 goed te bereiken via de Apeldoornseweg en op 3 minuten lopen is er een bushalte gelegen. Op bijbehorend terrein is een ruime hoeveelheid parkeerplaatsen aanwezig.
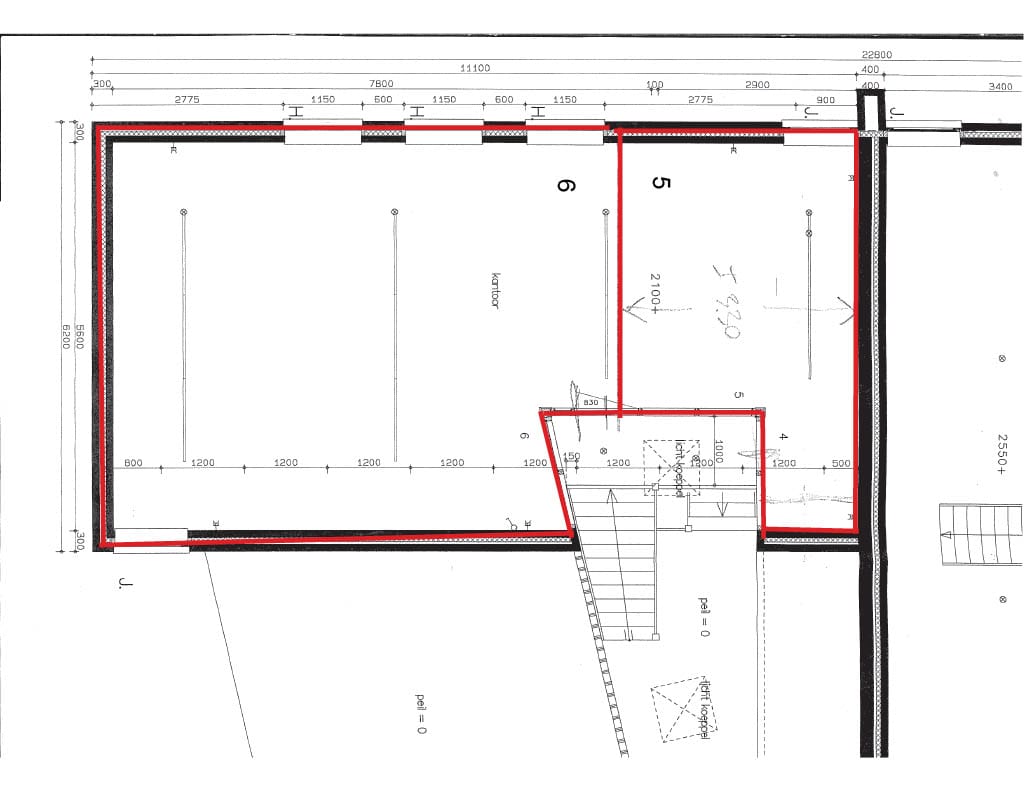
OPPERVLAKTE
Het te huur aangeboden kantoor-/praktijkruimte heeft een oppervlakte van circa 53 m² inclusief aandeel algemene ruimten. Ruimte 6 op de tekening.
PARKEREN
Op bijbehorend terrein is een ruime hoeveelheid gratis parkeerplaatsen aanwezig.
OPLEVERINGSNIVEAU
Het object is onder andere voorzien van:
- licht armaturen;
- gezamenlijke pantry;
- vloerbedekking;
- toiletgroep, bestaande uit dames en herentoilet.
BESTEMMINGSPLAN
Op het object is het bestemmingsplan “Hattem Zuidoost” van toepassing. Het bestemmingsplan is ter inzage via omgevingsloket.nl/regels op de kaart waarop u kunt zien of uw bedrijfsactiviteiten onder de mogelijkheden vallen.
ENERGIELABEL
Deze dient nog opgemaakt te worden en zal door verhuurder worden verstrekt.
AANVAARDING
Per direct.
HUURPRIJS
€ 700,- per maand excl. btw.
HUURPERIODE
Nader overeen te komen.
SERVICEKOSTEN
€ 150, - per maand excl. btw fixed fee
Bij deze servicekosten zitten de volgende zaken inbegrepen
- gebruik gas, water en elektra incl. vastrecht;
- onderhoud tuin en groenvoorzieningen;
- periodieke glasbewassing, buitenzijde;
- gezamenlijk gebruik van de pantry;
- gezamenlijk gebruik van de sanitaire voorziening;
- gezamenlijk gebruik van de wachtruimte;
- afvalstoffenheffing;
- zuiveringslasten;
- rioolrechten gebruiker;
- waterschapslasten gebruiker;
- het schoonhouden en periodiek reinigen der goten, afvoeren en rioleringen;
- periodieke controle brandslag.
OPZEGTERMIJN
Nader overeen te komen.
HUURBETALING
Per maand, vooraf te voldoen.
Dit object heeft een eigen website. Zie sparrenlaan3-hattem.nl
PLAN EEN BEZICHTIGING
Bent u geïnteresseerd in een bedrijfsruimte? Neem contact met ons op om een bezichtiging in te plannen. We laten u graag de mogelijkheden zien.
Te huur representatieve kantoor-/prakrijkruimte gelegen aan de Sparrenlaan 3 te Hattem. Deze kantoor-/praktijkruimte is gelegen op de eerste verdieping en heeft een oppervlakte van ca. 53 m² incl. aandeel voor algemene ruimte. In het gebouw zijn meerdere zorg gerelateerde bedrijven gevestigd zoals: Buurtzorg en Psychologenpraktijk en Fysiotherapie . Dit maakt deze ruimte zeer geschikt als praktijkruimte.
INDELING
Bij de entree van de Sparrenlaan 3 zit een een gezamenlijke ontvangst en wachtruimte. Via een looptrap is de 1e verdieping te betreden waar de te huur aangeboden kantoor-/praktijkruimte is gelegen.
LOCATIE
De Sparrenlaan 3 te Hattem is gelegen op een op een zeer representatieve locatie in een groene villawijk. Het pand is zowel met de auto als met het ov uitstekend bereikbaar. Met de auto is de sparrenlaan 3 goed te bereiken via de Apeldoornseweg en op 3 minuten lopen is er een bushalte gelegen. Op bijbehorend terrein is een ruime hoeveelheid parkeerplaatsen aanwezig.
OPPERVLAKTE
Het te huur aangeboden kantoor-/praktijkruimte heeft een oppervlakte van circa 53 m² inclusief aandeel algemene ruimten. Ruimte 6 op de tekening.
PARKEREN
Op bijbehorend terrein is een ruime hoeveelheid gratis parkeerplaatsen aanwezig.
OPLEVERINGSNIVEAU
Het object is onder andere voorzien van:
- licht armaturen;
- gezamenlijke pantry;
- vloerbedekking;
- toiletgroep, bestaande uit dames en herentoilet.
BESTEMMINGSPLAN
Op het object is het bestemmingsplan “Hattem Zuidoost” van toepassing. Het bestemmingsplan is ter inzage via omgevingsloket.nl/regels op de kaart waarop u kunt zien of uw bedrijfsactiviteiten onder de mogelijkheden vallen.
ENERGIELABEL
Deze dient nog opgemaakt te worden en zal door verhuurder worden verstrekt.
AANVAARDING
Per direct.
HUURPRIJS
€ 700,- per maand excl. btw.
HUURPERIODE
Nader overeen te komen.
SERVICEKOSTEN
€ 150, - per maand excl. btw fixed fee
Bij deze servicekosten zitten de volgende zaken inbegrepen
- gebruik gas, water en elektra incl. vastrecht;
- onderhoud tuin en groenvoorzieningen;
- periodieke glasbewassing, buitenzijde;
- gezamenlijk gebruik van de pantry;
- gezamenlijk gebruik van de sanitaire voorziening;
- gezamenlijk gebruik van de wachtruimte;
- afvalstoffenheffing;
- zuiveringslasten;
- rioolrechten gebruiker;
- waterschapslasten gebruiker;
- het schoonhouden en periodiek reinigen der goten, afvoeren en rioleringen;
- periodieke controle brandslag.
OPZEGTERMIJN
Nader overeen te komen.
HUURBETALING
Per maand, vooraf te voldoen.
Dit object heeft een eigen website. Zie sparrenlaan3-hattem.nl
PLAN EEN BEZICHTIGING
Bent u geïnteresseerd in een bedrijfsruimte? Neem contact met ons op om een bezichtiging in te plannen. We laten u graag de mogelijkheden zien.
Kaart
Kaart laden...
Kadastrale grens
Bebouwing
Reistijd
Krijg inzicht in de bereikbaarheid van dit object vanuit bijvoorbeeld een openbaar vervoer station of vanuit een adres.