Omschrijving
Aan een hoofdroute van en naar het centrum gelegen kantoor-/praktijkruimte met eigen parkeerruimte. Het pand beschikt over energielabel A.
Locatie
Het object is gelegen aan één van de drukste wegen van en naar het centrum op loopafstand van bushaltes en het kernwinkelgebied van Hoogeveen maar ook op maar 1½ kilometer afstand van de op- en afritten van de snelweg A28 (Zwolle – Groningen).
Oppervlakte
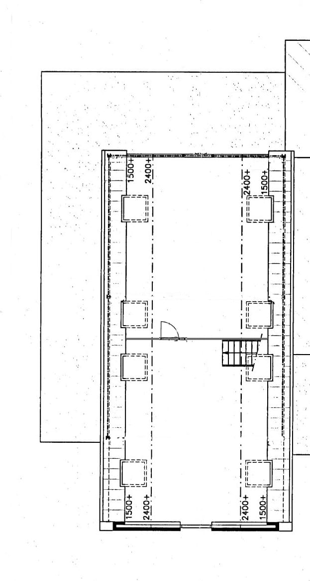
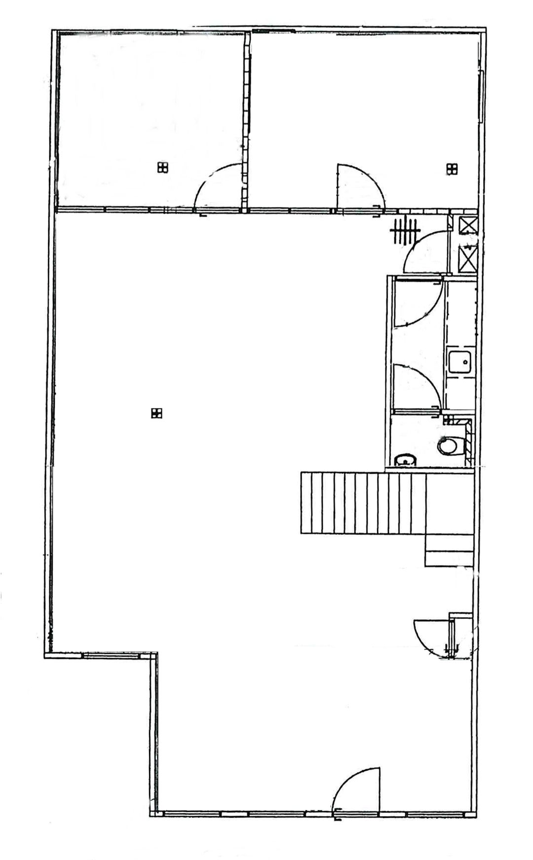
De totale oppervlakte bedraagt circa 169 m² VVO waarvan ongeveer 112 m² op de begane grond en 57 m² op de verdieping.
Indeling
Begane grond: ruim opgezette kantoorruimte (nu met balie) met 2 separate kantoren/spreekkamers, keuken, toilet. Vaste trap naar de verdieping.
Verdieping: 2 royale kantoren.
Uitvoering:
- scheidingswanden;
- systeemplafonds met LED-verlichting;
- centrale verwarming en airco-units (koelen en verwarmen);
- patchkast en data-bekabeling;
- meterkast met telefoon-, coax- en glasvezelaansluiting;
- pantry met vaatwasser, koelkast en magnetron;
- beveiligingsinstallatie;
- vluchtwegsignalering;
- brandblusmiddelen;
- zonwering (screen en markiezen);
- 28 zonnepanelen.
Overname van het op de foto’s aanwezige meubilair en inrichting is bespreekbaar.
Parkeren
Direct voor het pand zijn 3 eigen parkeerplaatsen aanwezig. Daarnaast is er aan Het Haagje openbare (gratis) parkeerruimte aanwezig.
Bestemming
De bestemming is ‘Kantoor’. Als definitie hiervan wordt in de bestemmingsregels aangegeven ‘een gebouw waarvan ten minste 80 % van de vloeroppervlakte wordt gebruikt voor administratieve activiteiten, inclusief daaraan gerelateerde activiteiten, zoals kantine en sanitair’.
Huurcondities:
- huurprijs: € 2.500,- per maand, excl. BTW;
- aanvaarding: in overleg, op korte termijn mogelijk;
- huurbetaling: per maand vooruit te voldoen;
- huurtermijn: 5 jaren + 5 optiejaren, afwijkende periode in overleg;
- opzegtermijn: 12 maanden;
- huurovereenkomst: conform model ROZ;
- indexering: jaarlijks op basis van de CPI-index van het CBS;
- zekerheidstelling: borg ter grootte van 3 maanden huur, vermeerderd met de verschuldigde omzetbelasting.
Extra voorbehoud
Definitieve goedkeuring verhuurder.
Omzetbelasting
Verhuurder wenst te opteren voor een met BTW-belaste huur/verhuur. Ingeval huurder de BTW niet kan verrekenen zal de huurprijs met een nader vast te stellen bedrag worden verhoogd ter compensatie van de gevolgen van het vervallen van de mogelijkheden om te opteren voor BTW-belaste verhuur.
Aansprakelijkheid
Vorenstaande behelst vrijblijvende informatie. Alle verstrekte informatie moet worden beschouwd als een uitnodiging tot het doen van een bod of om in onderhandeling te treden. Wij kunnen niet instaan voor de juistheid of volledigheid van deze gegevens.
Locatie
Het object is gelegen aan één van de drukste wegen van en naar het centrum op loopafstand van bushaltes en het kernwinkelgebied van Hoogeveen maar ook op maar 1½ kilometer afstand van de op- en afritten van de snelweg A28 (Zwolle – Groningen).
Oppervlakte
De totale oppervlakte bedraagt circa 169 m² VVO waarvan ongeveer 112 m² op de begane grond en 57 m² op de verdieping.
Indeling
Begane grond: ruim opgezette kantoorruimte (nu met balie) met 2 separate kantoren/spreekkamers, keuken, toilet. Vaste trap naar de verdieping.
Verdieping: 2 royale kantoren.
Uitvoering:
- scheidingswanden;
- systeemplafonds met LED-verlichting;
- centrale verwarming en airco-units (koelen en verwarmen);
- patchkast en data-bekabeling;
- meterkast met telefoon-, coax- en glasvezelaansluiting;
- pantry met vaatwasser, koelkast en magnetron;
- beveiligingsinstallatie;
- vluchtwegsignalering;
- brandblusmiddelen;
- zonwering (screen en markiezen);
- 28 zonnepanelen.
Overname van het op de foto’s aanwezige meubilair en inrichting is bespreekbaar.
Parkeren
Direct voor het pand zijn 3 eigen parkeerplaatsen aanwezig. Daarnaast is er aan Het Haagje openbare (gratis) parkeerruimte aanwezig.
Bestemming
De bestemming is ‘Kantoor’. Als definitie hiervan wordt in de bestemmingsregels aangegeven ‘een gebouw waarvan ten minste 80 % van de vloeroppervlakte wordt gebruikt voor administratieve activiteiten, inclusief daaraan gerelateerde activiteiten, zoals kantine en sanitair’.
Huurcondities:
- huurprijs: € 2.500,- per maand, excl. BTW;
- aanvaarding: in overleg, op korte termijn mogelijk;
- huurbetaling: per maand vooruit te voldoen;
- huurtermijn: 5 jaren + 5 optiejaren, afwijkende periode in overleg;
- opzegtermijn: 12 maanden;
- huurovereenkomst: conform model ROZ;
- indexering: jaarlijks op basis van de CPI-index van het CBS;
- zekerheidstelling: borg ter grootte van 3 maanden huur, vermeerderd met de verschuldigde omzetbelasting.
Extra voorbehoud
Definitieve goedkeuring verhuurder.
Omzetbelasting
Verhuurder wenst te opteren voor een met BTW-belaste huur/verhuur. Ingeval huurder de BTW niet kan verrekenen zal de huurprijs met een nader vast te stellen bedrag worden verhoogd ter compensatie van de gevolgen van het vervallen van de mogelijkheden om te opteren voor BTW-belaste verhuur.
Aansprakelijkheid
Vorenstaande behelst vrijblijvende informatie. Alle verstrekte informatie moet worden beschouwd als een uitnodiging tot het doen van een bod of om in onderhandeling te treden. Wij kunnen niet instaan voor de juistheid of volledigheid van deze gegevens.
Kaart
Kaart laden...
Kadastrale grens
Bebouwing
Reistijd
Krijg inzicht in de bereikbaarheid van dit object vanuit bijvoorbeeld een openbaar vervoer station of vanuit een adres.