Populierendreef 968-B 2272 HW Voorburg
Huurprijs op aanvraag
Omschrijving
VOLLEDIGE kantoorverdieping huren in Voorburg (ca. 290 m²)
Ruimte, rust en flexibiliteit aan de Populierendreef 968
Ben je op zoek naar een zelfstandige, ruime en representatieve bedrijfsruimte in Voorburg van circa 290 m²? Dan is de eerste verdieping aan de Populierendreef 968B precies wat je zoekt. Deze complete verdieping van circa 290 m² is in zijn geheel te huur en biedt volop mogelijkheden voor een kantoor, praktijkruimte of lichte bedrijfsactiviteiten.
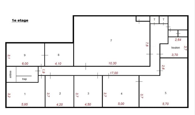
De indeling is overzichtelijk en praktisch, met in totaal vijf kantoorunits en een ruime, multifunctionele bedrijfsruimte van ca. 80 m² – inclusief twee geschakelde kamers. Perfect voor wie behoefte heeft aan verschillende werkruimtes, overlegplekken of een combinatie van administratie en uitvoering.
Je beschikt over eigen voorzieningen zoals een ruime keuken, dubbele toiletgroep en een nette, gedeelde entree. De ruimte is goed bereikbaar met zowel de auto als het openbaar vervoer en ligt op het rustige bedrijventerrein Essesteijn, nabij Den Haag.
HUURINFORMATIE
- Huurtermijn: in overleg, flexibel bespreekbaar
- Huurprijs: € 2750,- per maand
- Beschikbaar: op korte termijn mogelijk
- Huurbetaling: per maand vooruit
- Servicekosten: geen, huurder sluit zelf een energiecontract af
- Waarborgsom: drie maanden huur
- BTW: geen btw van toepassing
- Jaarlijkse indexering: conform CPI, jaarlijks per 1 april
GEZAMENLIJKE VOORZIENINGEN
- Riante keuken
- Dubbele toiletgroep
- Goederenlift aanwezig
- Parkeerplaatsen op eigen terrein
LIGGING
Deze locatie ligt op het kleinschalige bedrijventerrein Essesteijn in Voorburg en is uitstekend bereikbaar:
- Nabij N14, A4, A12 en A13
- Stations Mariahoeve en Voorburg ’t Loo op loopafstand
- Tram 2, 3, 4 en 6 én buslijnen 24 en 45 in de directe omgeving
Liever een kleinere ruimte kantoor/praktijk of bedrijfsruimte huren? Dat kan ook: Want bij voldoende aanmelding verhuren we de units ook los. Bekijk hiervoor de andere advertentie.
-------------------------------------------
LOSSE kantoorruimte, praktijkruimte of werkplek huren in Voorburg? Dit is je kans.
5 zelfstandige kantoorunits + 1 bedrijfsruimte met geschakelde kamers
Bij voldoende belangstelling bieden we op de eerste verdieping van Populierendreef 968B in Voorburg meerdere zelfstandige kantoor- en werkruimtes aan in een rustig en kleinschalig bedrijfsverzamelgebouw. Ideaal voor zzp’ers, kleine bedrijven, coaches, therapeuten, freelancers of creatieve ondernemers die op zoek zijn naar een eigen ruimte.
In totaal zijn er vijf afzonderlijke kantoorruimtes te huur, elk geschikt voor zelfstandig gebruik. Daarnaast is er een grotere bedrijfsruimte van ca. 60 m² beschikbaar, met twee geschakelde kamers, ideaal voor creatieve of ambachtelijke ondernemers (totaal 110 m²)
Alle units maken gebruik van gezamenlijke voorzieningen, zoals een ruime keuken, een dubbele toiletgroep en een verzorgde entree.
GEZAMENLIJKE VOORZIENINGEN
- Riante keuken
- Dubbele toiletgroep
- Goederenlift aanwezig
- Parkeerplaatsen op eigen terrein in overleg mogelijk
HUURINFORMATIE
- Huurtermijn: in overleg, flexibel bespreekbaar
- Beschikbaar: op korte termijn mogelijk
- Huurbetaling: per maand vooruit
- Servicekosten: Energie, water en schoonmaak worden op basis van een verdeelsleutel berekend.
- Waarborgsom: drie maanden huur
- BTW: geen btw van toepassing
- Jaarlijkse indexering: conform CPI, jaarlijks per 1 april
BESCHIKBARE UNITS EN HUURPRIJZEN
Unit 1 - Kantoor/praktijkruimte - 19 m2 - €425
Unit 2 - Kantoor/praktijkruimte - 16 m2 - €375
Unit 3 - Kantoor/praktijkruimte - 17 m2 - €375
Unit 4 - Kantoor/praktijkruimte - 18 m2 - €375
Unit 5 - Kantoor/praktijkruimte - 30,5 m2 - €595
Unit 6 - Multi functionele bedrijfsruimte/magazijn - 110 m2 - €1250
Alle units zijn voorzien van daglicht, nette vloerafwerking, verwarming en systeemplafonds met LED-verlichting. De ruimtes worden leeg opgeleverd en zijn direct gebruiksklaar.
LIGGING
Deze locatie ligt op het kleinschalige bedrijventerrein Essesteijn in Voorburg en is uitstekend bereikbaar:
- Nabij N14, A4, A12 en A13
- Stations Mariahoeve en Voorburg ’t Loo op loopafstand
- Tram 2, 3, 4 en 6 én buslijnen 24 en 45 in de directe omgeving
Liever de ruimte als één grote bedrijfsruimte huren? Dat kan ook: de volledige verdieping van circa 290 m² is beschikbaar voor verhuur als één geheel. Bekijk hiervoor de andere advertentie.
Ruimte, rust en flexibiliteit aan de Populierendreef 968
Ben je op zoek naar een zelfstandige, ruime en representatieve bedrijfsruimte in Voorburg van circa 290 m²? Dan is de eerste verdieping aan de Populierendreef 968B precies wat je zoekt. Deze complete verdieping van circa 290 m² is in zijn geheel te huur en biedt volop mogelijkheden voor een kantoor, praktijkruimte of lichte bedrijfsactiviteiten.
De indeling is overzichtelijk en praktisch, met in totaal vijf kantoorunits en een ruime, multifunctionele bedrijfsruimte van ca. 80 m² – inclusief twee geschakelde kamers. Perfect voor wie behoefte heeft aan verschillende werkruimtes, overlegplekken of een combinatie van administratie en uitvoering.
Je beschikt over eigen voorzieningen zoals een ruime keuken, dubbele toiletgroep en een nette, gedeelde entree. De ruimte is goed bereikbaar met zowel de auto als het openbaar vervoer en ligt op het rustige bedrijventerrein Essesteijn, nabij Den Haag.
HUURINFORMATIE
- Huurtermijn: in overleg, flexibel bespreekbaar
- Huurprijs: € 2750,- per maand
- Beschikbaar: op korte termijn mogelijk
- Huurbetaling: per maand vooruit
- Servicekosten: geen, huurder sluit zelf een energiecontract af
- Waarborgsom: drie maanden huur
- BTW: geen btw van toepassing
- Jaarlijkse indexering: conform CPI, jaarlijks per 1 april
GEZAMENLIJKE VOORZIENINGEN
- Riante keuken
- Dubbele toiletgroep
- Goederenlift aanwezig
- Parkeerplaatsen op eigen terrein
LIGGING
Deze locatie ligt op het kleinschalige bedrijventerrein Essesteijn in Voorburg en is uitstekend bereikbaar:
- Nabij N14, A4, A12 en A13
- Stations Mariahoeve en Voorburg ’t Loo op loopafstand
- Tram 2, 3, 4 en 6 én buslijnen 24 en 45 in de directe omgeving
Liever een kleinere ruimte kantoor/praktijk of bedrijfsruimte huren? Dat kan ook: Want bij voldoende aanmelding verhuren we de units ook los. Bekijk hiervoor de andere advertentie.
-------------------------------------------
LOSSE kantoorruimte, praktijkruimte of werkplek huren in Voorburg? Dit is je kans.
5 zelfstandige kantoorunits + 1 bedrijfsruimte met geschakelde kamers
Bij voldoende belangstelling bieden we op de eerste verdieping van Populierendreef 968B in Voorburg meerdere zelfstandige kantoor- en werkruimtes aan in een rustig en kleinschalig bedrijfsverzamelgebouw. Ideaal voor zzp’ers, kleine bedrijven, coaches, therapeuten, freelancers of creatieve ondernemers die op zoek zijn naar een eigen ruimte.
In totaal zijn er vijf afzonderlijke kantoorruimtes te huur, elk geschikt voor zelfstandig gebruik. Daarnaast is er een grotere bedrijfsruimte van ca. 60 m² beschikbaar, met twee geschakelde kamers, ideaal voor creatieve of ambachtelijke ondernemers (totaal 110 m²)
Alle units maken gebruik van gezamenlijke voorzieningen, zoals een ruime keuken, een dubbele toiletgroep en een verzorgde entree.
GEZAMENLIJKE VOORZIENINGEN
- Riante keuken
- Dubbele toiletgroep
- Goederenlift aanwezig
- Parkeerplaatsen op eigen terrein in overleg mogelijk
HUURINFORMATIE
- Huurtermijn: in overleg, flexibel bespreekbaar
- Beschikbaar: op korte termijn mogelijk
- Huurbetaling: per maand vooruit
- Servicekosten: Energie, water en schoonmaak worden op basis van een verdeelsleutel berekend.
- Waarborgsom: drie maanden huur
- BTW: geen btw van toepassing
- Jaarlijkse indexering: conform CPI, jaarlijks per 1 april
BESCHIKBARE UNITS EN HUURPRIJZEN
Unit 1 - Kantoor/praktijkruimte - 19 m2 - €425
Unit 2 - Kantoor/praktijkruimte - 16 m2 - €375
Unit 3 - Kantoor/praktijkruimte - 17 m2 - €375
Unit 4 - Kantoor/praktijkruimte - 18 m2 - €375
Unit 5 - Kantoor/praktijkruimte - 30,5 m2 - €595
Unit 6 - Multi functionele bedrijfsruimte/magazijn - 110 m2 - €1250
Alle units zijn voorzien van daglicht, nette vloerafwerking, verwarming en systeemplafonds met LED-verlichting. De ruimtes worden leeg opgeleverd en zijn direct gebruiksklaar.
LIGGING
Deze locatie ligt op het kleinschalige bedrijventerrein Essesteijn in Voorburg en is uitstekend bereikbaar:
- Nabij N14, A4, A12 en A13
- Stations Mariahoeve en Voorburg ’t Loo op loopafstand
- Tram 2, 3, 4 en 6 én buslijnen 24 en 45 in de directe omgeving
Liever de ruimte als één grote bedrijfsruimte huren? Dat kan ook: de volledige verdieping van circa 290 m² is beschikbaar voor verhuur als één geheel. Bekijk hiervoor de andere advertentie.
Kenmerken
Overdracht
- Huurprijs
- Huurprijs op aanvraag
- Servicekosten
- Geen servicekosten bekend
- Aangeboden sinds
-
- Status
- Beschikbaar
- Aanvaarding
- In overleg
Bouw
- Hoofdfunctie
- Kantoor
- Mogelijke functie(s)
- Bedrijfsruimte
- Soort bouw
- Bestaande bouw
- Bouwjaar
- 1991
Oppervlakten
- Oppervlakte
- 290 m² (in units vanaf 16 m²)
Indeling
- Aantal bouwlagen
- 1 bouwlaag
- Voorzieningen
- Airconditioning, inbouwarmaturen, liften, te openen ramen, systeemplafond, toilet, pantry en kamerindeling
Energie
- Energielabel
- Niet beschikbaar
Omgeving
- Ligging
- Bedrijventerrein
Foto's