Dorpsstraat 50-B 6661 EM Elst (GE)

€ 2.150 /mnd

Omschrijving

Op A1 locatie commerciële ruimte aan de Dorpsstraat in Elst.

Op A1 locatie gelegen, in het hart van het winkelgebied van Elst naast:
• Kaaswinkel ’t zuivelhoekje
• Slijterij Grape & Grane
• Slagerij: Uit den Boschde nabije
• Centraal dorpsplein

Zowel met eigen vervoer als met openbaar vervoer is de
Dorpsstraat uitstekend te bereiken. Er is voldoende
parkeergelegenheid en in de directe nabijheid bevindt
zich een bushalte en een NS-station.

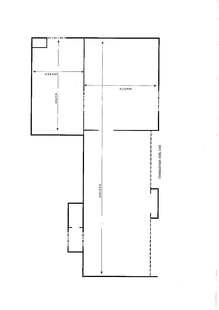
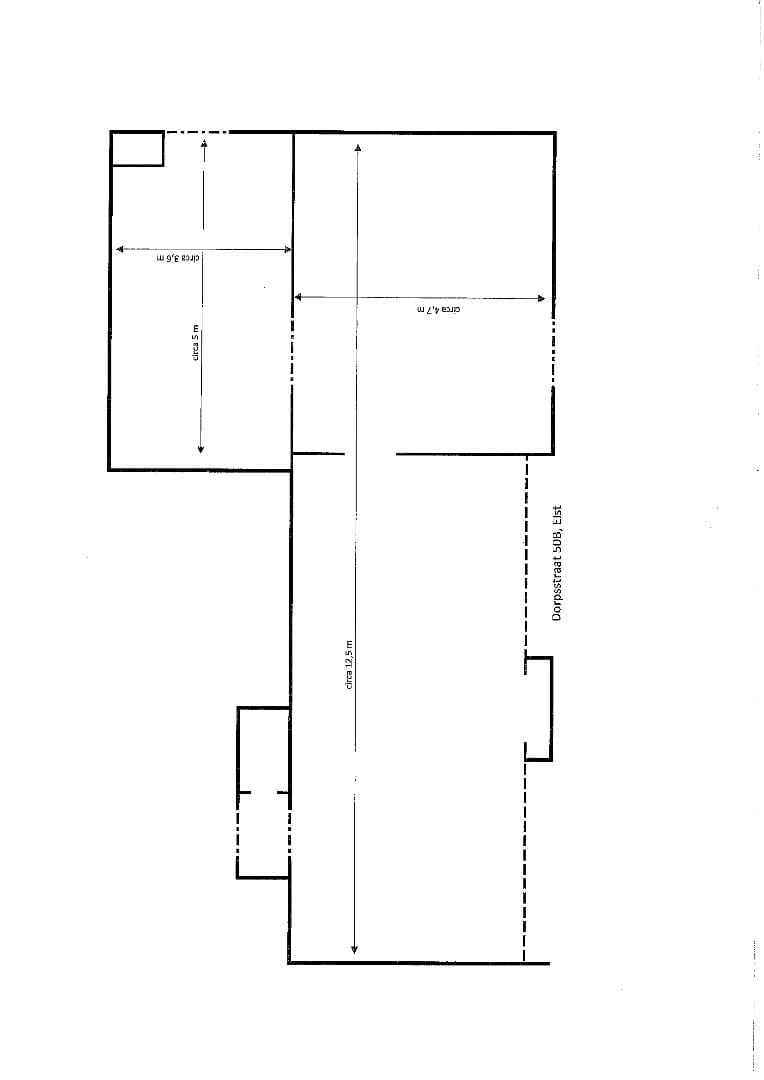
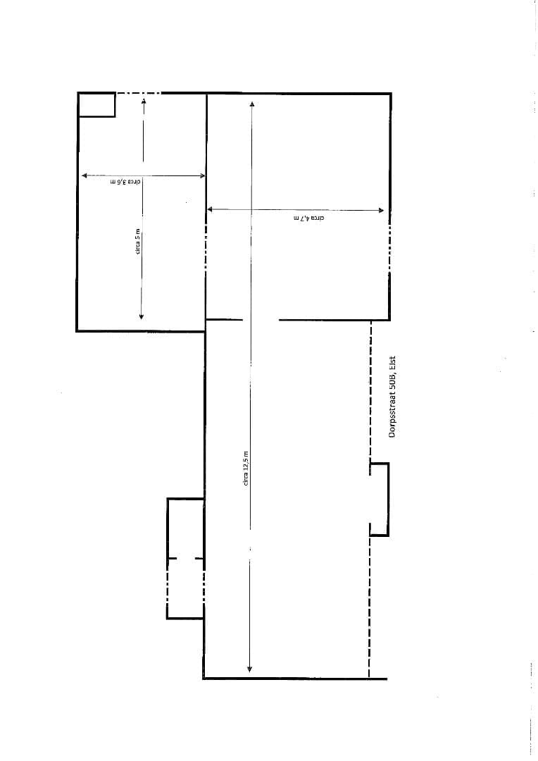
Oppervlakte:
Het object heeft een oppervlakte van ca. 80 m², gelegen op de begane grond.
Frontbreedte circa 12 meter.
De strook “stoep” langs de hele gevel is onderdeel van het gehuurd en geen openbaar terrein..

Huurprijs:
€ 2150,00 per maand, te vermeerderen met BTW.

Opleveringsniveau:
In overleg, conform bijgevoegde tekening. Diverse huurder specifieke aanpassingen zijn mogelijk in overleg.

Binnenzijde voorzien van:
o Meterkast inclusief nutsvoorzieningen
o wanden en plafond
o Toilet met wastafel

HUUROVEREENKOMST
• Standaard ROZ huurovereenkomst
• Ingangsdatum in overleg
• 3 maanden bankgarantie/ borg
• Huurperiode 5 + 5 jaar
• Opzegtermijn 12 maanden

Heeft dit uw interesse gewekt dan nodigen wij u van harte uit het pand eens van binnen te komen bekijken!

Kenmerken

Overdracht

Huurprijs
€ 2.150 per maand
Oorspronkelijke huurprijs
€ 1.650 per maand
Aangeboden sinds
Status
Beschikbaar
Aanvaarding
Per direct beschikbaar

Bouw

Hoofdfunctie
Winkel
Soort bouw
Bestaande bouw
Bouwjaar
1101

Oppervlakten

Oppervlakte
80 m²
Verkoopvloeroppervlakte
80 m²
Breedte gevel
3 m
Perceel
80 m²

Indeling

Aantal bouwlagen
1 bouwlaag

Energie

Energielabel
Niet beschikbaar

Omgeving

Bijdrage winkeliersvereniging
Nee
Welstandsklasse
B1

Kaart

Kaart laden...

Kadastrale grens Bebouwing

Reistijd

Krijg inzicht in de bereikbaarheid van dit object vanuit bijvoorbeeld een openbaar vervoer station of vanuit een adres.

Dorpsstraat 50-B

€ 2.150 /mnd