Cromhoffsbleekweg 2 7513 EW Enschede
€ 470 /mnd
Omschrijving
TE HUUR PRAKTIJKRUIMTE IN GEZONDHEIDSCENTRUM
Aan de Cromhoffsbleekweg 2 in Enschede bieden wij praktijkruimten te huur aan, gelegen binnen een maatschappelijk gezondheidscentrum genaamd het “Jannink Complex”. De ruimten zijn bestemd voor maatschappelijke functies en geschikt voor organisaties in de zorg en het welzijnsdomein. Ze beschikken over een gezamenlijke entree en maken gebruik van gemeenschappelijke voorzieningen.
De locatie is centraal gelegen, uitstekend bereikbaar en biedt ruime parkeergelegenheid in de directe omgeving.
BESTEMMINGSPLAN
Bestemmingsplan “Getfert-Perik-Hogeland-Noord 2023”, met als bestemming ‘Wonen’ en functieaanduiding ‘Maatschappelijk’.
Voor meer gedetailleerde informatie verwijzen we u naar de website :
KADASTRAAL
Gemeente Enschede, Sectie F, Nummer 2782 A4 (gedeeltelijk).
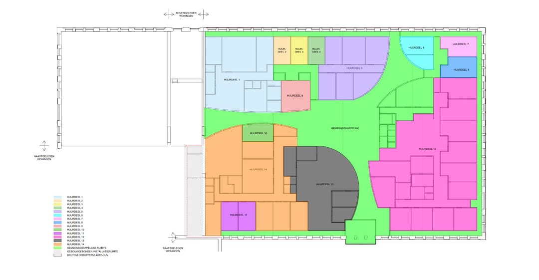
INDELING EN OPPERVLAKTEN
De totale verhuurbare oppervlakte van het onderhavige object bedraagt circa 118 m² en is als volgt onderverdeeld:
- Huurdeel 4 ter grootte van circa 19 m², gelegen op de begane grond (ca. 28 m² inclusief algemene ruimte)
- Huurdeel 7 ter grootte van circa 27 m², gelegen op de begane grond (ca. 39 m² inclusief algemene ruimte)
- Huurdeel 9 ter grootte van circa 36 m², gelegen op de begane grond (ca. 51 m² inclusief algemene ruimte)
De oppervlakten zijn gemeten door verhurend makelaar uit een kopie bouwtekening. Het opgegeven metrage is derhalve indicatief; er kunnen geen rechten aan worden ontleend noch kan er sprake zijn van enige verrekening achteraf.
VOORZIENINGEN
Het object wordt opgeleverd met o.a. de volgende voorzieningen:
- Pantry
- Verlichtingsarmaturen
- Gietvloer
HUURPRIJS
- Huurdeel 4 ter grootte van circa 28 m² (inclusief aandeel algemene ruimte) - € 470,-- per maand
- Huurdeel 7 ter grootte van circa 39 m² (inclusief aandeel algemene ruimte)- € 645,-- per maand
- Huurdeel 9 ter grootte van circa 51 m² (inclusief aandeel algemene ruimte) - prijs op aanvraag
HUURTERMIJN
In overleg.
VERLENGINGSTERMIJN
In overleg.
OPZEGTERMIJN
6 maanden voorafgaande aan de expiratiedatum.
SERVICEKOSTEN
€ 45,-- per m² per jaar, te vermeerderen met btw.
HUURDERSVERENIGING
De kosten worden naar ratio van de oppervlakte verrekend.
ZEKERHEIDSSTELLING
Doorlopende bankgarantie of waarborgsom ter grootte van 3 maanden huur inclusief eventuele servicekosten en inclusief btw.
INDEXERING
Jaarlijks, voor het eerst één jaar na huuringangsdatum, op basis van de wijziging van het maandprijsindexcijfer volgens de consumentenprijsindex (CPI), reeks CPI - Alle huishoudens (2015=100), gepubliceerd door het Centraal Bureau voor de Statistiek (CBS). De huurprijs zal nimmer minder bedragen dan de huurprijs van het voorafgaande jaar.
BEREIKBAARHEID
De Cromhoffsbleekweg 2 in Enschede is uitstekend bereikbaar per auto en openbaar vervoer. De locatie ligt nabij de ringweg en diverse uitvalswegen. In de directe omgeving is betaald parkeren van toepassing. Meerdere bushaltes bevinden zich op loopafstand en het centraal station is goed bereikbaar. Zowel huurders als bezoekers profiteren van een centrale ligging en goede ontsluiting.
OMGEVINGSFACTOREN
De Cromhoffsbleekweg 2 bevindt zich in een gemengd stedelijk gebied met een maatschappelijke invulling. In de directe omgeving zijn diverse zorg- en welzijnsorganisaties gevestigd. De locatie is goed bereikbaar en ligt op korte afstand van het stadscentrum. Betaald parkeren is van toepassing in de directe omgeving.
LOCATIEAANDUIDING
De Cromhoffsbleekweg 2 is centraal gelegen aan de rand van het Enschedese stadscentrum, in de wijk Getfert. De locatie bevindt zich in een gemengd gebied met maatschappelijke, woon- en zorgfuncties. Door de ligging nabij hoofdwegen en het centrum is de bereikbaarheid uitstekend. In de directe omgeving zijn diverse voorzieningen aanwezig
AANVAARDING
Aanvaarding in overleg.
VOORBEHOUD
Definitieve goedkeuring opdrachtgever en/of verhuurder.
INFORMATIE
Wij hebben getracht middels deze zorgvuldig samengestelde documentatie u zo uitgebreid mogelijk te informeren. Desondanks kunnen hieraan geen rechten worden ontleend. Slechts de feitelijke situatie geeft u een juist beeld.
Aan de Cromhoffsbleekweg 2 in Enschede bieden wij praktijkruimten te huur aan, gelegen binnen een maatschappelijk gezondheidscentrum genaamd het “Jannink Complex”. De ruimten zijn bestemd voor maatschappelijke functies en geschikt voor organisaties in de zorg en het welzijnsdomein. Ze beschikken over een gezamenlijke entree en maken gebruik van gemeenschappelijke voorzieningen.
De locatie is centraal gelegen, uitstekend bereikbaar en biedt ruime parkeergelegenheid in de directe omgeving.
BESTEMMINGSPLAN
Bestemmingsplan “Getfert-Perik-Hogeland-Noord 2023”, met als bestemming ‘Wonen’ en functieaanduiding ‘Maatschappelijk’.
Voor meer gedetailleerde informatie verwijzen we u naar de website :
KADASTRAAL
Gemeente Enschede, Sectie F, Nummer 2782 A4 (gedeeltelijk).
INDELING EN OPPERVLAKTEN
De totale verhuurbare oppervlakte van het onderhavige object bedraagt circa 118 m² en is als volgt onderverdeeld:
- Huurdeel 4 ter grootte van circa 19 m², gelegen op de begane grond (ca. 28 m² inclusief algemene ruimte)
- Huurdeel 7 ter grootte van circa 27 m², gelegen op de begane grond (ca. 39 m² inclusief algemene ruimte)
- Huurdeel 9 ter grootte van circa 36 m², gelegen op de begane grond (ca. 51 m² inclusief algemene ruimte)
De oppervlakten zijn gemeten door verhurend makelaar uit een kopie bouwtekening. Het opgegeven metrage is derhalve indicatief; er kunnen geen rechten aan worden ontleend noch kan er sprake zijn van enige verrekening achteraf.
VOORZIENINGEN
Het object wordt opgeleverd met o.a. de volgende voorzieningen:
- Pantry
- Verlichtingsarmaturen
- Gietvloer
HUURPRIJS
- Huurdeel 4 ter grootte van circa 28 m² (inclusief aandeel algemene ruimte) - € 470,-- per maand
- Huurdeel 7 ter grootte van circa 39 m² (inclusief aandeel algemene ruimte)- € 645,-- per maand
- Huurdeel 9 ter grootte van circa 51 m² (inclusief aandeel algemene ruimte) - prijs op aanvraag
HUURTERMIJN
In overleg.
VERLENGINGSTERMIJN
In overleg.
OPZEGTERMIJN
6 maanden voorafgaande aan de expiratiedatum.
SERVICEKOSTEN
€ 45,-- per m² per jaar, te vermeerderen met btw.
HUURDERSVERENIGING
De kosten worden naar ratio van de oppervlakte verrekend.
ZEKERHEIDSSTELLING
Doorlopende bankgarantie of waarborgsom ter grootte van 3 maanden huur inclusief eventuele servicekosten en inclusief btw.
INDEXERING
Jaarlijks, voor het eerst één jaar na huuringangsdatum, op basis van de wijziging van het maandprijsindexcijfer volgens de consumentenprijsindex (CPI), reeks CPI - Alle huishoudens (2015=100), gepubliceerd door het Centraal Bureau voor de Statistiek (CBS). De huurprijs zal nimmer minder bedragen dan de huurprijs van het voorafgaande jaar.
BEREIKBAARHEID
De Cromhoffsbleekweg 2 in Enschede is uitstekend bereikbaar per auto en openbaar vervoer. De locatie ligt nabij de ringweg en diverse uitvalswegen. In de directe omgeving is betaald parkeren van toepassing. Meerdere bushaltes bevinden zich op loopafstand en het centraal station is goed bereikbaar. Zowel huurders als bezoekers profiteren van een centrale ligging en goede ontsluiting.
OMGEVINGSFACTOREN
De Cromhoffsbleekweg 2 bevindt zich in een gemengd stedelijk gebied met een maatschappelijke invulling. In de directe omgeving zijn diverse zorg- en welzijnsorganisaties gevestigd. De locatie is goed bereikbaar en ligt op korte afstand van het stadscentrum. Betaald parkeren is van toepassing in de directe omgeving.
LOCATIEAANDUIDING
De Cromhoffsbleekweg 2 is centraal gelegen aan de rand van het Enschedese stadscentrum, in de wijk Getfert. De locatie bevindt zich in een gemengd gebied met maatschappelijke, woon- en zorgfuncties. Door de ligging nabij hoofdwegen en het centrum is de bereikbaarheid uitstekend. In de directe omgeving zijn diverse voorzieningen aanwezig
AANVAARDING
Aanvaarding in overleg.
VOORBEHOUD
Definitieve goedkeuring opdrachtgever en/of verhuurder.
INFORMATIE
Wij hebben getracht middels deze zorgvuldig samengestelde documentatie u zo uitgebreid mogelijk te informeren. Desondanks kunnen hieraan geen rechten worden ontleend. Slechts de feitelijke situatie geeft u een juist beeld.
Kenmerken
Overdracht
- Huurprijs
- € 470 per maand
- Servicekosten
- € 45 per vierkante meter per jaar (21% BTW van toepassing)
- Aangeboden sinds
-
- Status
- Beschikbaar
- Aanvaarding
- In overleg
Bouw
- Hoofdfunctie
- Zorginstelling
- Soort bouw
- Bestaande bouw
- Bouwjaar
- 1900
Oppervlakten
- Oppervlakte
- 118 m²
Energie
- Energielabel
- Niet beschikbaar
Foto's