Omschrijving
Algemeen
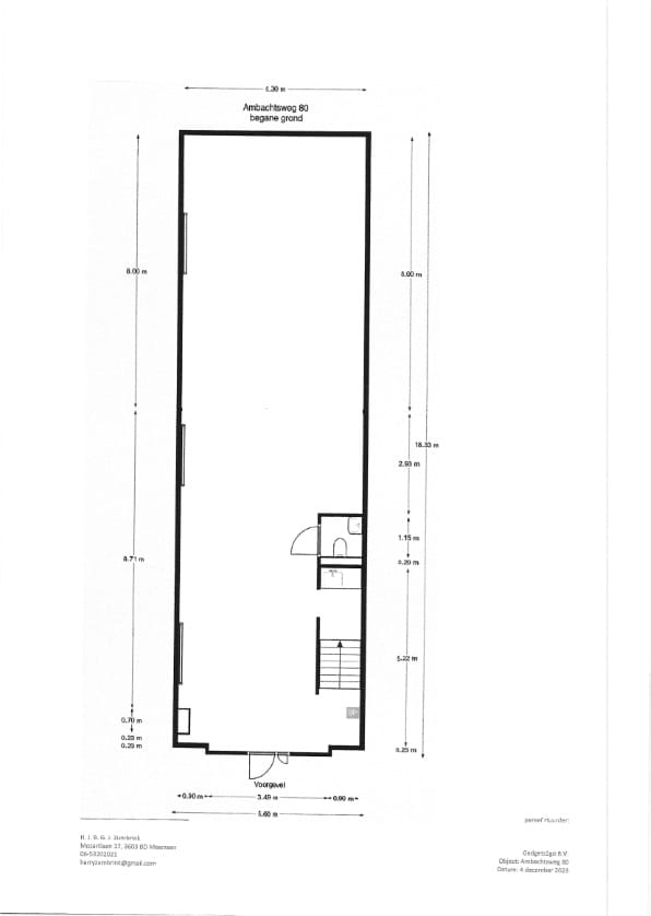
Bedrijfspand met kantoorruimte op de verdieping gelegen op industrieterrein "Lage Weide" te Utrecht (voorheen Maarssen). De begane grond is geschikt voor showroom of bedrijfsruimte. Via de dubbele toegangsdeur kunnen er eenvoudig spullen worden geladen en gelost. Eventueel is de pui aan te passen naar een variant met een overheaddeur.
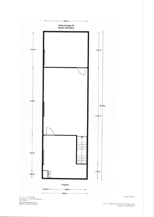
De kantoorruimte heeft een entree via een vaste trap naar de verdieping. Naast ramen in de gevel beschikt deze ruimte ook over een lichthof voor een plezierige werkbeleving. De kantoren zijn voorzien van een kamerindeling met 2 ruimtes. De wanden kunnen eventueel verplaatst worden of desnoods worden verwijderd.
In de omgeving zijn bedrijven gevestigd als Fietsenwinkel.nl, Van Heezik Transport, Bagels & Beans, Strukton, Cool Blue en Picnic. Deze ruimte is geschikt voor o.a. een onderhoudsbedrijf, groothandel of bijvoorbeeld een ICT bedrijf.
Bereikbaarheid
Deze locatie is uitermate goed bereikbaar met eigen vervoer via de noordelijke ‘Ring Utrecht’ (Zuilensering) die een rechtstreekse ontsluiting heeft met de Rijkswegen A2 (Den Bosch-Amsterdam) en A27 (Hilversum-Breda). Tevens is deze locatie via een regelmatige busverbinding met Utrecht Centraal Station goed te bereiken vanaf een bushalte aan de Maarssenbroeksedijk.
Oppervlakte
Het totale verhuurbaar vloeroppervlak van het gebouw bedraagt circa 190 m² te verdelen over:
- circa 95 m² bedrijfsruimte/showroom op de begane grond;
- circa 95 m² kantoorruimte op de 1ste verdieping.
Parkeren
2 parkeerplaatsen op eigen terrein voor het gebouw tegen de groenstrook aan.
Koopprijs
€ 335.000,- kosten koper (vrij van BTW).
Huurprijs
- Kantoor-/bedrijfsruimte: € 1.900,- per maand te vermeerderen met BTW.
Servicekosten bij huur
€ 25,- per maand excl. BTW voor o.a. onderhoud C.V.-installatie en buitenterrein.
Energielabel
A (geldig tot 28 maart 2029),
Aanvaarding
In overleg.
Bijzonderheden
- De openslaande deur kan worden vervangen door een overheaddeur
- Autobedrijven zijn niet welkom
- Sommige beelden zijn met AI bewerkt
- Voorbehoud gunning eigenaar
Voor meer info op bezichtiging:
Uppelschoten Real Estate | Bedrijfsmakelaars en Taxateurs
Papendorpseweg 95
3528 BJ Utrecht
085 - 06 05 055
Wij werken voor ú
Bedrijfspand met kantoorruimte op de verdieping gelegen op industrieterrein "Lage Weide" te Utrecht (voorheen Maarssen). De begane grond is geschikt voor showroom of bedrijfsruimte. Via de dubbele toegangsdeur kunnen er eenvoudig spullen worden geladen en gelost. Eventueel is de pui aan te passen naar een variant met een overheaddeur.
De kantoorruimte heeft een entree via een vaste trap naar de verdieping. Naast ramen in de gevel beschikt deze ruimte ook over een lichthof voor een plezierige werkbeleving. De kantoren zijn voorzien van een kamerindeling met 2 ruimtes. De wanden kunnen eventueel verplaatst worden of desnoods worden verwijderd.
In de omgeving zijn bedrijven gevestigd als Fietsenwinkel.nl, Van Heezik Transport, Bagels & Beans, Strukton, Cool Blue en Picnic. Deze ruimte is geschikt voor o.a. een onderhoudsbedrijf, groothandel of bijvoorbeeld een ICT bedrijf.
Bereikbaarheid
Deze locatie is uitermate goed bereikbaar met eigen vervoer via de noordelijke ‘Ring Utrecht’ (Zuilensering) die een rechtstreekse ontsluiting heeft met de Rijkswegen A2 (Den Bosch-Amsterdam) en A27 (Hilversum-Breda). Tevens is deze locatie via een regelmatige busverbinding met Utrecht Centraal Station goed te bereiken vanaf een bushalte aan de Maarssenbroeksedijk.
Oppervlakte
Het totale verhuurbaar vloeroppervlak van het gebouw bedraagt circa 190 m² te verdelen over:
- circa 95 m² bedrijfsruimte/showroom op de begane grond;
- circa 95 m² kantoorruimte op de 1ste verdieping.
Parkeren
2 parkeerplaatsen op eigen terrein voor het gebouw tegen de groenstrook aan.
Koopprijs
€ 335.000,- kosten koper (vrij van BTW).
Huurprijs
- Kantoor-/bedrijfsruimte: € 1.900,- per maand te vermeerderen met BTW.
Servicekosten bij huur
€ 25,- per maand excl. BTW voor o.a. onderhoud C.V.-installatie en buitenterrein.
Energielabel
A (geldig tot 28 maart 2029),
Aanvaarding
In overleg.
Bijzonderheden
- De openslaande deur kan worden vervangen door een overheaddeur
- Autobedrijven zijn niet welkom
- Sommige beelden zijn met AI bewerkt
- Voorbehoud gunning eigenaar
Voor meer info op bezichtiging:
Uppelschoten Real Estate | Bedrijfsmakelaars en Taxateurs
Papendorpseweg 95
3528 BJ Utrecht
085 - 06 05 055
Wij werken voor ú
Kaart
Kaart laden...
Kadastrale grens
Bebouwing
Reistijd
Krijg inzicht in de bereikbaarheid van dit object vanuit bijvoorbeeld een openbaar vervoer station of vanuit een adres.